Ons kantoor is lid van Baerz & Co Luxury Homes; een internationaal platform dat exclusieve woningmakelaars met elkaar verbindt. Neem contact op met ons secretariaat voor meer informatie over het landelijke aanbod, waarvan u hieronder een selectie kunt bekijken.

Villa te koop in WILNIS

WILNIS Oudhuijzerweg 62 - 3648 AD Nederland


John Korver profile image
John Korver
Real Estate Agent
+31 6 23 21 84 94
welkom@korvermakelaars.nl

Korver makelaars
Stationsweg 12
3641RG Mijdrecht
NETHERLANDS
+31 297 25 04 21
www.korvermakelaars.nl
welkom@korvermakelaars.nl

Woonoppervlakte
330m2
Perceeloppervlakte
3074m2
Slaapkamers
7

Omschrijving

Oudhuijzerweg 62 én Oudhuijzerweg 62 a in Wilnis !

Soms bestaat het echt: een plek die je hart raakt zodra je er bent. Waar de stilte van het water je welkom heet, waar de molen statig over je waakt en waar je elke dag wakker wordt met het gevoel dat je op vakantie bent. Aan de rand van het charmante Wilnis, bereikbaar via een karakteristieke eigen ophaalbrug, liggen deze twee unieke geschakelde woningen – een zeldzame vondst in een betoverend decor.
Deze dubbele woning is gelegen op een ruim perceel, omarmd door water, groen en rust. Een plek waar je volop geniet van privacy én verbondenheid met de natuur, met de dorpskern en met de steden die slechts een korte rit verderop liggen. Amsterdam, Utrecht, Hilversum of Amstelveen? Binnen handbereik. Maar of je ooit nog weg wilt, is de vraag…
Unieke kans om twee huizen voor de prijs van één te bemachtigen, ideaal als bijvoorbeeld mantelzorgwoning. Aan u de keuze!

De indeling van de woningen is als volgt:

OUDHUIJZERWEG 62
We beginnen de rondleiding bij de grootste woning. Al bij binnenkomst in de riante hal voel je het: dit is geen standaard huis. Hier wordt met liefde en aandacht geleefd. De hal is opvallend licht dankzij een groot dakraam boven het trappenhuis en biedt toegang tot een garderobe, trapkast, toilet én de sfeervolle woonkamer. De woonkamer is het kloppend hart van de woning, hier wordt je aandacht direct getrokken door het water aan de achterzijde van de woning, de grote glazen pui zorgt voor een uniek plaatje. De woonkamer is een lichte, uitnodigende ruimte waar comfort en sfeer samenkomen. Dankzij de grote raampartijen stroomt het daglicht rijkelijk naar binnen en kijk je overal uit op het kalmerende water. De plavuizen vloer met vloerverwarming zorgt het hele jaar door voor een behaaglijk gevoel. Voor extra warmte op koude dagen zijn er bovendien een convectorput en enkele radiatoren aanwezig. Aan de voorzijde vind je via stijlvolle glazen klapdeuren een multifunctionele ruimte die nu ingericht is als kantoor, maar ook perfect als slaapkamer kan dienen dankzij de aangrenzende badkamer met douche en wastafel. Een extra plus voor wie levensloopbestendig wil wonen of gasten in stijl wil ontvangen. De open keuken, met een uitzicht alsof het uit een schilderij komt, is van alle gemakken voorzien. Een koelkast, vriezer, koel-la, vaatwasser, combi-magnetronoven, inductiekookplaat én een Quooker maken dit een heerlijke plek om te koken, borrelen en leven.

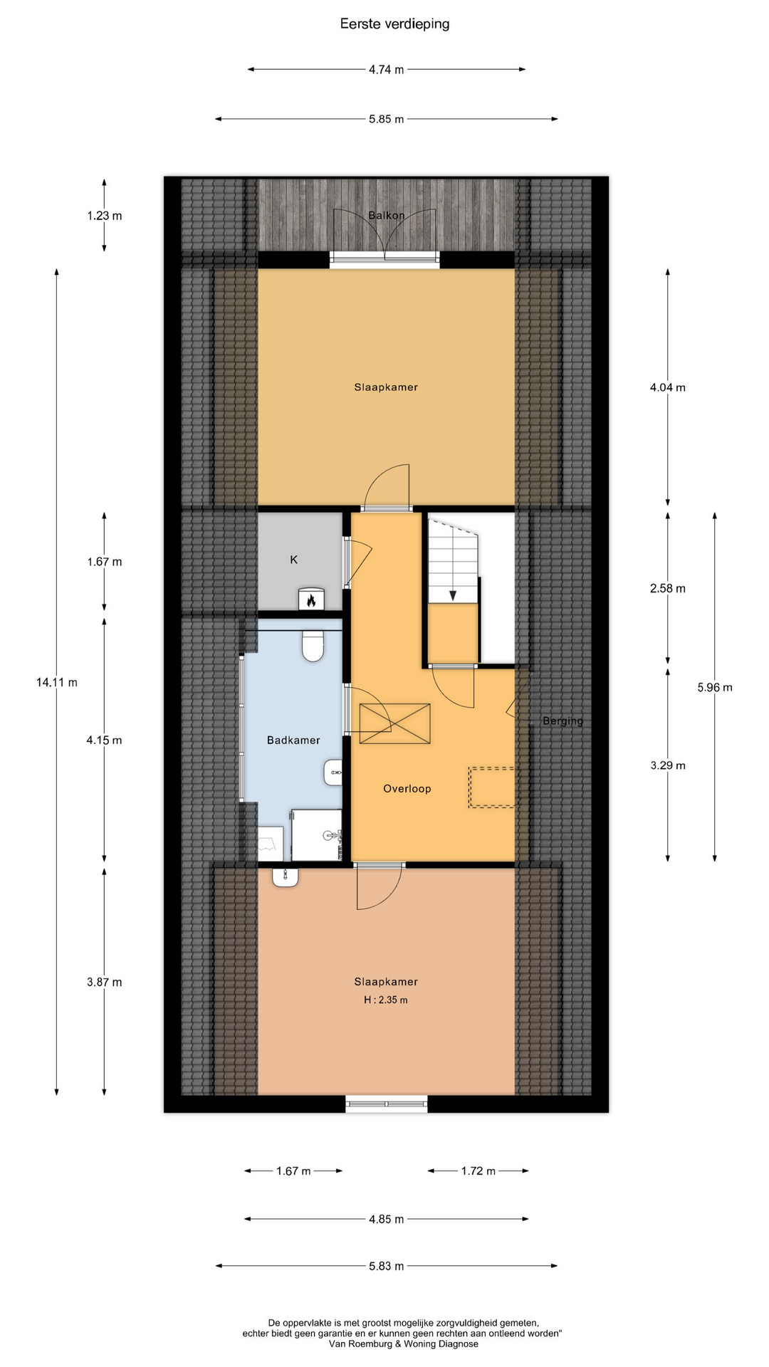
Via de trap in de hal kom je op de eerste verdieping.
Op deze verdieping vind je drie royale slaapkamers, een praktische wasruimte en een badkamer die naar wens ingericht kan worden. De slaapkamers zijn heerlijk licht, waarvan er één zelfs openslaande deuren heeft naar een balkon met uitzicht over het water. Meerdere vlieringen zorgen voor extra opbergruimte, praktisch én netjes weggewerkt op de tweede verdieping.

Buiten is het al net zo indrukwekkend. Via de keuken loop je zo het overdekte terras op, dé plek voor een kop koffie in de ochtendzon of een goed glas wijn tijdens de zonsondergang. De keurig onderhouden tuin loopt uit tot aan het water en biedt volop ruimte voor ontspanning én avontuur. Je vaart hier vandaan in ongeveer een half uur naar de Vinkeveense plassen.

De kenmerken van deze woning zijn:
Woonoppervlakte 180 m²
Overige inpandige ruimte 22 m²
Gebouwgebonden buitenruimte 14 m²
Bruto inhoud 803 m³

OUDHUIJZERWEG 62 A
De tweede woning is net zo karaktervol, charmant en vol mogelijkheden. Ook hier word je verwelkomd door een ruime hal en een woonkamer met grote raampartijen, een sfeervolle gashaard en een warm houten laminaatvloer. De serre aan de achterzijde is een ware eyecatcher: licht, uitnodigend en met schuifpui naar de tuin. Een heerlijke plek om vier seizoenen lang te genieten van het uitzicht. De open keuken is praktisch en gezellig, met een inductiekookplaat, koelkast, vriezer, vaatwasser en combi-magnetronoven. Achterin de woning bevindt zich een ruime slaapkamer (nu in gebruik als inloopkast) met wastafel, naast een grote voorraadkast en het tweede toilet.

Via de trap in de woonkamer bereik je de bovenverdieping met nog twee royale slaapkamers en een badkamer. De slaapkamer aan de achterzijde heeft openslaande deuren naar een balkon met opnieuw dat magische uitzicht over water en landerijen. Hier wil je nooit meer weg. Ook deze woning beschikt over een praktische wasruimte met cv-ketel en de aansluitingen voor witgoed plus extra bergruimte. Ook deze woning beschikt over een bergvliering die met vlizotrap te bereiken is.

Aan de achterzijde van deze woning bevindt zich de inpandige garage die vanuit de hal in de woning bereikbaar is en natuurlijk ook vanuit de tuin. Aan de zijde van de oprit geven vier openslaande deuren toegang om twee auto's binnen te kunnen parkeren.

De kenmerken van deze woning zijn:
Woonoppervlakte 150 m²
Overige inpandige ruimte 38 m²
Gebouwgebonden buitenruimte 6 m²
Bruto inhoud 656 m³

De tuin achter beide woningen is een groene oase met talloze mogelijkheden. Denk aan ontspannen op het terras, een verkoelende duik nemen, aanmeren met je sloep of genieten van een boek onder de overkapping aan het water. De tuin is voorzien van een grote schuur voor tuingereedschap, oude dierenverblijven (ideaal voor kippen, schapen of geiten) en zelfs een boothuis met takelinstallatie, klaar voor je sloep.

Een unieke kans op een buitengewoon leven!
Deze dubbele woning biedt niet alleen comfort en ruimte, maar ook vrijheid, schoonheid en eindeloze mogelijkheden. Of je hier nu met meerdere generaties wilt wonen, een kantoor of praktijk aan huis droomt, of gewoon op zoek bent naar een bijzondere plek om thuis te komen, dit is een kans die je niet snel nog eens tegenkomt. Kom het zelf ervaren. Laat je betoveren door het uitzicht, voel de rust en zie de mogelijkheden. Plan een bezichtiging en ontdek jouw nieuwe thuis aan het water in Wilnis.

Wilnis is een plaats in de provincie Utrecht. Het maakt deel uit van de gemeente De Ronde Venen.
Enkele kenmerken van Wilnis:
Ligging: Wilnis is gelegen in het groene hart van Nederland, omgeven door polders en waterwegen. Het is gunstig gelegen ten opzichte van steden als Utrecht en Amsterdam.
Natuur: De omgeving van Wilnis staat bekend om zijn landelijke karakter en biedt mogelijkheden voor prachtige wandel- en fietstochten. Het is omringd door water, waaronder de rivier de Amstel.
Woonomgeving: Wilnis heeft een mix van nieuwbouw en historische woningen. Het is een rustige en aantrekkelijke woonomgeving vaak gekozen door gezinnen die op zoek zijn naar een landelijke sfeer met goede verbindingen naar stedelijke gebieden.
Voorzieningen: Ondanks de landelijke uitstraling zijn er in Wilnis de nodige voorzieningen zoals scholen, winkels en sportfaciliteiten. Het biedt een evenwichtige combinatie van landelijk wonen en nabijheid van voorzieningen. Op loopafstand bevindt zich de befaamde golfbaan Veldzijde.
Wateractiviteiten: Door de waterrijke omgeving zijn er mogelijkheden voor watersporten en recreatie. De Vinkeveense Plassen, bekend om hun heldere water, liggen in de buurt en bieden gelegenheid voor zwemmen, varen en andere wateractiviteiten.

Kortom, Wilnis is een aantrekkelijke woonplaats voor mensen die willen genieten van de rust en schoonheid van oer-Hollandse polders, terwijl ze toch dicht bij stedelijke voorzieningen willen zijn.

Kenmerken

Overdracht
Vraagprijs
€ 1.745.000 k.k.
Status
beschikbaar
Aanvaarding
in overleg
Bouw
Soort woonhuis
Villa
Soort bouw
geschakelde woning
Bouwjaar
1975
Energieklasse
C
Soort dak
mansarde dak
Slaapkamers
7
Badkamers
3
Oppervlakten en inhoud
Woonoppervlakte
330 m2
Overige inpandige ruimte
60 m2
Gebouwgebonden buitenruimte
20 m2
Inhoud
1459 m3
Perceeloppervlakte
3074 m2
faciliteiten
Aan water
Aan rustige weg
Vrij uitzicht
Aan vaarwater
Baerz & Co Property Brochure

Brochure

Informatie / bezichtigingsaanvraag

Video's

Foto's

Plattegronden