Ons kantoor is lid van Baerz & Co Luxury Homes; een internationaal platform dat exclusieve woningmakelaars met elkaar verbindt. Neem contact op met ons secretariaat voor meer informatie over het landelijke aanbod, waarvan u hieronder een selectie kunt bekijken.

Woonboerderij te koop in NUENEN

NUENEN Hoevensestraat 10 - 5674 XK Nederland


Anne-Marie van Santvoort profile image
Anne-Marie van Santvoort
Real Estate Agent
+31 654362068
anne-marie@vansantvoort.nl

Van Santvoort Makelaars
Torenallee 65
5617 BB Eindhoven
NETHERLANDS
+31 40 269 25 30
www.vansantvoort.nl
info@eindhoven.vansantvoort.nl

Woonoppervlakte
275m2
Perceeloppervlakte
7540m2
Slaapkamers
6

Omschrijving

Exclusief 'landelijk' wonen in het buitengebied tussen Nuenen en Gerwen. Deze woonboerderij combineert historische charme met modern wooncomfort. De ruime en lichte woonruimtes met onder andere slaapkamers en badkamer op de begane grond en de parkachtige tuin zorgen voor een prettige en rustige leefomgeving. Door het riante perceel een ideale omgeving voor het houden van onder andere paarden waar de nodige voorzieningen voor zijn getroffen. Ontdek hoe klassiek en eigentijds samen een unieke woonbeleving creëren.

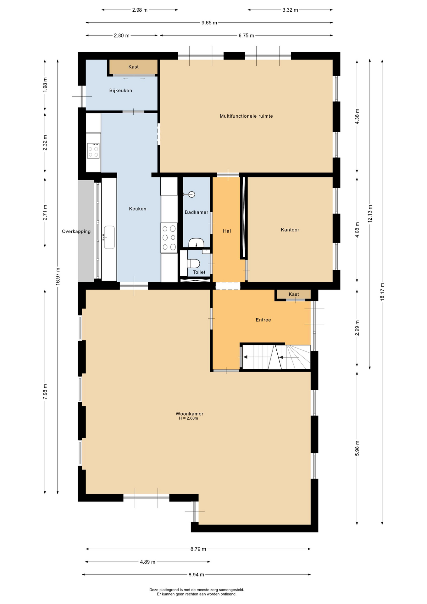
BEGANE GROND
Middels een monumentale voordeur is er toegang tot de ruime, lichte hal welke toegang geeft tot de meterkast, trapopgang naar de verdieping, de living, toiletruimte, badkamer, kantoorruimte en multifunctionele ruimte. De hal is afgewerkt met een doorlopende 'houtlook' tegelvloer met vloerverwarming welke doorloopt over de gehele verdieping, strakke stucwerk wanden en een stucwerk plafond.
De luxe, deels betegelde toiletruimte is voorzien van een hangend closet en fonteintje, voor ventilatie is er een mechanisch afzuigingssysteem.

De living is ruim opgezet en beschikt over grote raampartijen. Hierdoor valt er veel natuurlijk licht binnen en is er een prachtig uitzicht op de tuin. De wanden en het plafond zijn afgewerkt met strak stucwerk en sierlijsten. Via een tuindeur en openslaande deuren is er toegang tot de tuin.

Middels een deur is er toegang tot de riante en luxe keukeninrichting welke geplaatst is in een dubbele wandopstelling in hoogglans wit. De keuken is voorzien van diverse onderkastjes, lades en inbouwapparatuur, waaronder een Boretti-fornuis met 6 pitten, een frytop en een dubbele oven, rvs afzuigkap (2024), vaatwasser (2021) en koelkast (2022). De keuken bestaat uit twee gedeelten. In het achterste gedeelte bevindt zich een derde wandopstelling waar een extra koelkast (2022) en een inductiekookplaat zijn geplaatst. Vanuit dit gedeelte is er toegang tot de bijkeuken en de multifunctionele ruimte.

In de bijkeuken bevindt zich een praktische ingebouwde kast. Via een loopdeur is toegang tot de achtertuin. Ook is hier vloerverwarming aanwezig en een handige uitstortgootsteen.

De multifunctionele ruimte is momenteel ingericht als tweede living, echter kan deze ruimte ook worden ingericht als bijvoorbeeld slaapkamer of chillruimte. De kamer is voorzien van strakke stucwerk wanden en een stucwerk plafond met inbouwspots. Er zijn meerdere raampartijen aanwezig wat zorgt voor een prettige lichtinval en via de openslaande deuren is er toegang tot de tuin.

De badkamer is geheel betegeld en voorzien van een douche en een wastafel.

Het kantoor is bereikbaar vanuit de hal en is momenteel ingericht als sportruimte/werkruimte, echter kan deze ruimte ook worden ingericht als slaapkamer of chillruimte. De ruimte is afgewerkt strakke stucwerk wanden en een stucwerk plafond met inbouwspots.

EERSTE VERDIEPING
Middels de trapopgang is er toegang tot de overloop welke toegang geeft tot vier slaapkamers, 2 badkamers, een toiletruimte, wasruimte en een berging. De geheel betegelde toiletruimte beschikt over een hangend closet en fonteintje.

De slaapkamers hebben allen eenzelfde afwerking, ze zijn voorzien van vloerbedekking, stucwerk wanden en een stucwerk plafond.
De eerste slaapkamer is gelegen aan de voorzijde van de woning en is ruim opgezet. Deze slaapkamer is voorzien van een extra 'Velux' dakraam.
De tweede slaapkamer is gelegen aan de achterzijde van beschikt eveneens over een ‘Velux’ dakraam. Onder de kapschuinte zijn praktische kasten aangebracht, die extra opbergruimte bieden. Via een loopdeur is toegang tot een balkon op het zuidwesten.
De derde slaapkamer, de ouderslaapkamer, ligt eveneens aan de achterzijde. Wat deze kamer uniek maakt, is de grote raampartij met uitzicht op de bosrijke tuin. Direct naast deze slaapkamer bevindt zich de en suite badkamer. Deze badkamer is geheel betegeld in een lichte, moderne kleur. Er is een inloopdouche met hand- en regendouche, een dubbele wastafel met meubel en een ligbad met uitzicht op de tuin. Ook is er een mechanisch afzuigsysteem en een raampartij voor ventilatie, en is er vloerverwarming aanwezig.
De vierde slaapkamer is gelegen aan de voorzijde van de woning en beschikt over maar liefst drie raampartijen waarvan twee ‘Velux’ dakramen zodat er altijd voldoende daglicht is.

Vanuit de overloop is de tweede badkamer direct bereikbaar, deze is geheel betegeld in een lichte kleurstelling en beschikt over een ligbad, dubbele wastafel en een douchecabine. Voor ventilatie is er een mechanisch afzuigingssysteem aanwezig, tevens is er vloerverwarming aanwezig.

De wasruimte is voorzien van vloerbedekking, stucwerk wanden en een stucwerk plafond. Er bevindt zich een ‘Velux’ dakraam en hier bevindt zich de aansluiting voor de wasappratuur.

KELDER
De diepe manshoge kelder biedt praktische opslagruimte.

TUIN
De prachtige tuin omringt de woning en heeft diverse bijgebouwen. Het betreft een parkachtige tuin met veel privacy, een groot gazon, weiland, volwassen beplanting en meerdere terrassen. Daarnaast is er een stal aanwezig voor het hobbymatig houden van vier paarden. Er zijn ook paddocks, waarvan één met een schuilstal. Tevens zijn er twee afsluitbare schuren aanwezig.

Aan de voorzijde van de woning bevindt zich een oprit met ruimte voor meerdere auto's en een elektrische poort met video en intercom die het perceel kan afsluiten.

De tuin is een echte eyecatcher en biedt volop mogelijkheden.

BIJZONDERHEDEN
- Woonoppervlakte circa 275 m²
- Inhoud circa 992 m³
- Kelder aanwezig van circa 6 m²
- Stal aanwezig voor het houden van 4 paarden, circa 80 m²
- Riante perceel van 7540 m²
- Woning is oorspronkelijk gebouwd in 1945, maar is in 2017 volledig verbouwd en aan de andere zijde rigoureus uitgebouwd, onder andere gehele dak vervangen en geïsoleerd
- Mogelijkheid tot creëren van 2 extra slaapkamers op de begane grond
- Elektrische poort aan de voorzijde voorzien van video en intercom
- Kozijnen van tropisch hardhout en voorzien van isolerende beglazing
- Prachtig gelegen net buiten het dorp, maar met het dorp binnen handbereik

Kenmerken

Overdracht
Vraagprijs
€ 1.550.000 k.k.
Status
beschikbaar
Aanvaarding
in overleg
Bouw
Soort woonhuis
Woonboerderij
Soort bouw
vrijstaande woning
Bouwjaar
1945
Energieklasse
C
Soort dak
zadeldak
Slaapkamers
6
Badkamers
3
Oppervlakten en inhoud
Woonoppervlakte
275 m2
Overige inpandige ruimte
7 m2
Gebouwgebonden buitenruimte
2 m2
Externe bergruimte
129 m2
Inhoud
992 m3
Perceeloppervlakte
7540 m2
faciliteiten
Mechanische ventilatie
Glasvezel kabel
Natuurlijke ventilatie
Baerz & Co Property Brochure

Brochure

Informatie / bezichtigingsaanvraag

Video's

Foto's

Plattegronden