Baerz & Co is een landelijk samenwerkingsverband van zorgvuldig geselecteerde boutique luxury makelaars. Samen vormen wij één netwerk, met één gedeeld aanbod. De woningen die u op onze website ziet, zijn afkomstig van alle aangesloten kantoren binnen Baerz & Co. Daardoor is niet ieder object rechtstreeks door ons kantoor in verkoop, maar door een gespecialiseerde collega binnen ons netwerk. Heeft u een woning gevonden die u aanspreekt en wilt u meer informatie? Dan brengen wij u graag persoonlijk in contact met de betreffende verkoopmakelaar, zodat u direct en zorgvuldig wordt begeleid.

DINTELOORD
Galgendijk 3 - 4671 RH
Nederland

Shirley Kneepkens profile image
Shirley Kneepkens
Real Estate Agent
€950.000 k.k.
Woonoppervlakte
241m2
Perceeloppervlakte
1640m2
Slaapkamers
5

Omschrijving

Aan de rustige, groene en waterrijke Galgendijk in Dinteloord, waar water en natuur naadloos samenkomen, bevindt zich dit unieke vrijstaande woonobject met niet één maar twee huisnummers (3 en 3a). Gelegen op misschien wel de mooiste plek van Dinteloord, op de grens van binnen en buiten de bebouwde kom en aan een doodlopende straat, geniet u hier van optimale rust, privacy en een vrij uitzicht. Een plek waar privacy, ruimte en veelzijdigheid centraal staan, en waar wonen, werken en recreëren moeiteloos in elkaar overvloeien.

Deze charmante woning is gelegen op een royaal perceel van maar liefst 1.640 m² en beschikt over een groen energielabel C. Dankzij het gelijkvloerse woonprogramma is de woning uitermate geschikt voor een brede doelgroep. Binnen treft u een comfortabele indeling met een ruime woonkamer en een lichte serre die een prachtig uitzicht biedt op de fraai aangelegde tuin met aangrenzend een waterdoorgang met eigen aanlegsteigers. In totaal zijn 4 slaapkamers aanwezig en is de woning voorzien van een breed pakket aan isolatie en o.a. airconditioning, wat bijdraagt aan een aangenaam woonklimaat in alle seizoenen.

De tuin vormt een ware oase van rust en is met zorg ingericht in Japanse sferen. Sfeervolle zithoekjes, groene doorkijkjes en een harmonieuze indeling zorgen voor een bijzondere beleving van buitenruimte. Hier geniet u in alle rust van het uitzicht over het water en de natuur.

Een absoluut hoogtepunt van dit object is het multifunctionele en duurzame bijgebouw met een eigen huisnummer (3a), gerealiseerd in 2016 en vv. een energielabel B. Dit volwaardige tweede verblijf biedt tal van mogelijkheden: van kantoor of praktijk aan huis tot gastenverblijf, mantelzorgwoning of zelfs recreatieve verhuur.

Het bijgebouw is recent nog gebruikt voor groepssessies en is ook verhuurd via natuurhuisje.nl. De indeling is praktisch en compleet met op de begane grond een ruime woonkamer/groepsruimte, een volledige keuken en badkamer. Op de verdieping bevinden zich een overloop met wasmachine- en drogeraansluiting, een eigen cv-installatie en een tweede (slaap)ruimte voorzien van airconditioning.

Voor liefhebbers van water en watersport is deze locatie een waar paradijs. Het perceel ligt direct aan vaarwater met 6 privé ligplaatsen voor boten, met de mogelijkheid om dit uit te breiden naar zelfs 11 ligplaatsen. U vaart vanaf uw eigen steiger eenvoudig richting het Volkerak, de Haringvliet en iets verderop de Grevelingen. De ligplaatsen zijn niet alleen ideaal voor eigen gebruik, maar bieden tevens interessante exploitatiemogelijkheden met een aantrekkelijk rendement ter afdekking van de maandelijkse kosten. Zes ligplaatsen zijn in eigendom en vijf extra plaatsen kunnen optioneel qua huur worden overgenomen.

Daarnaast beschikt het perceel over ruime parkeermogelijkheden op eigen terrein voor meerdere auto’s en is er een praktisch, afgesloten gedeelte vv. dubbele poort voor diverse opslag of wellicht het stallen van een camper, aanhanger, etc.

Kortom, een zeldzame combinatie van comfortabel wonen, ondernemingsmogelijkheden en recreatief genieten op een unieke locatie aan het water. Een plek welke elke dag voelt als vakantie!

INDELING:
Begane grond:
Hal/entree in 2 delen vv. trap naar de 1e verdieping, garderobe en bijkeukenruimte vv. opstelplaats HR-combiketel en wasmachine-/drogeraansluiting;

betegeld toilet met fonteintje;

woonkamer met airco, een trapkast vv. luik naar de betegelde kelder en open toegang tot de serre vv. gashaard, lichtstraat en glazen pui vv. tuindeuren met zicht op de tuin en watergang;

meterkast met 8 groepen, 3 krachtgroepen en aardlekschakelaars;

woonkeuken waarin geplaatst een in de hoek opgestelde inbouwkeuken voorzien van een granieten aanrechtblad met 1½ spoelbak, inbouw inductie kookplaat, -koel/vriescombi, -combi oven/magnetron, -elektrische oven, - verhoogde vaatwasser en een afzuigkap, wandafwerking tegels, tegelvloer, plafond vv. inbouwspots;

betegelde badkamer voorzien van een ligbad, douche, wastafel en toilet;

hoofdslaapkamer voorzien van een airconditioning en kastenwand, tegelvloer, voorzetwanden met isolatie t.b.v. extra comfort, spuitwerk plafond.

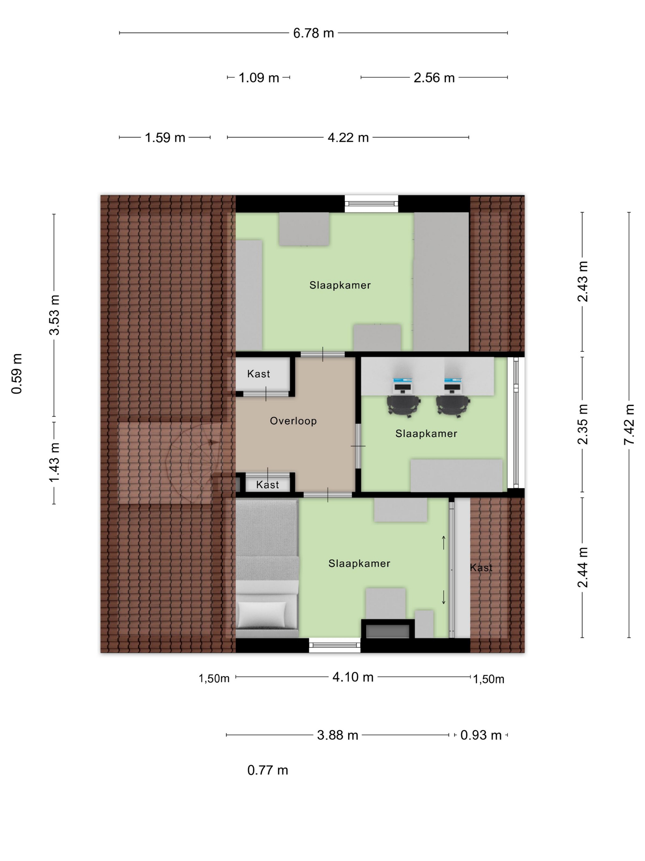
1e verdieping:
Overloop met een 2-tal bergkasten;

3 slaapkamers waarvan de middelste slaapkamer vv. dakkapel met zicht op de watergrang en de slaapkamers rechts vv. inbouwkast.

Bijgebouwen:
Multifunctioneel en volledig geïsoleerd bijgebouw uit 2016 met volwaardige inrichting voor o.a. gastenverblijf, B&B, zelfstandige kantoor-/praktijk-/werkruimte, etc. Indeling als volgt:

open ruimte c.q. woonkamer / groepsruimte / werkruimte met tuindeuren naar tuin/terras, vloerverwarming, camerasysteem, airco, loopdeur naar zijkant en zelfstandige voordeur naar straatzijde, open keuken met alle gewenste voorzieningen (o.a. gaskookplaat, vaatwasser, koeler, combi oven/magnetron, afzuigkap), vaste trap naar de 1e verdieping;

complete badkamer vv. wastafelmeubel, hangend toilet en inloopdouche;

1e verdieping:

overloop met 2 bergkasten vv. opstelplaats HR-combiketel, tussengroepenkast en wasmachine-/drogeraansluiting;

Multifunctionele open ruimte vv. geluidsdempende ondervloer, 4 dakramen, airco, wastafelmeubel, zelfstandige thermosstaat en mogelijkheden voor een of meerdere (slaap)kamers.

Meer zien van dit multifunctionele bijgebouw? Neem gerust eens een kijkje op www.natuurhuisje.nl en klik op locatienummer 34465.

Tuin:
Stijlvol aangelegde en inspiratievolle tuin rondom met Greenlabel A certificering, opgetrokken / ingericht in Japanse stijl vv. veel groen en diverse terrassen, beton gegoten paden (vv. staalnetten), borders, grindpaden, niveauverschil, waterschalen, houten veranda, vogelverblijf;

Terras aan het water met toegang tot de aanlegsteigers, welke alle zijn vv. elektrapunten (vv. tussenmeters) waardoor individueel gebruik / verhuur ook perfect mogelijk is (ca. € 1.500,- per jaar per ligplaats). Alle steigers zijn in 2017 gerealiseerd met 9 meter lange Azobé palen incl. Azobé hardhouten vlonders. Vergunning voor verhuur van de ligplaatsen is aanwezig. Tevens is een 2e pad aan de uiterste zijkant van het perceel naar de aanlegsteigers aanwezig t.b.v. zelfstandige toegang en behoud van privacy.

Oprit als aangelegd middels asfalt vv. parkeergelegenheid voor meerdere auto’s;

Dubbele poort naar zij-tuin met mogelijkheden voor buitenopslag, stalling camper / caravan, etc.

Bouwaard:
Woonhuis:
Traditioneel gebouwd, opgetrokken in metselbaksteen, begane grondvloer uitgevoerd in beton, 1e verdiepingsvloer uitgevoerd in hout, onderschoten kap gedekt met pannen en platdakconstructie gedekt met bitumineuze dakbedekking, buitenmuren in het verleden geïnjecteerd.

Bijgebouw:
Uitgevoerd in FSC gekeurd Europees Lariks hout, eiken palenframe vv. Douglas potdekseldelen welke dubbelwandig zijn uitgevoerd, begane grondvloer uitgevoerd in beton, 1e verdiepingsvloer uitgevoerd in hout vv. geluiddempend materiaal voor extra comfort, onderschoten kap gedekt met pannen

Isolatie:
De woning is voorzien van vloer-, spouwmuur (hoofdbouw d.m.v. voorzetwanden, uitbouw traditioneel spouwisolatie) en dakisolatie alsmede van (grotendeels HR++) isolerende beglazing.

Het bijgebouwd is voorzien van vloer-, muur- en dakisolatie alsmede van HR++ isolerende beglazing.

Verwarming en warmwatervoorziening:
De woning is voorzien van centrale verwarming. De HR-combiketel (fabricaat Remeha, bouwjaar 2010/2011), is geplaatst op de begane grond en voorziet tevens in warmwater. Het bijgebouw beschikt tevens over een zelfstandig HR-combiketel uit het jaar 2016.

Diversen:
Ondanks de vrije ligging aan de rand van het buitengebied zijn alhier gewoon de reguliere voorzieningen als riolering, glasvezelinternet en een gasaansluiting aanwezig;

De aangrenzende weg is ook eigendom van bewoners, doch wordt onderhouden door de Gemeente;

Elektra in 2016 uitgebreid, verzwaard en volledig vernieuwd;

Dinteloord biedt rust, ruimte en een dorpsgevoel doch zijn alle gewenste dagelijkse voorzieningen aanwezig. De ligging is heerlijk centraal ten opzichte van uitvalswegen waardoor o.a. Rotterdam, Breda en Antwerpen binnen ca. 30-45 minuten bereikbaar zijn. Tevens is een directe busverbinding aanwezig richting Bergen op Zoom en bovenal naar Rotterdam Zuidplein (ca. 30-45 minuten). Ook fraaie natuurgebieden als de Dinteloordse Grozen, de Dinteloordse haven en weidse wandel- en fietsroutes bevinden zich binnen handbereik.

Kenmerken

Air conditioning
Overdracht
Vraagprijs
€ 950.000 k.k.
Status
beschikbaar
Aanvaarding
in overleg
Bouw
Soort woonhuis
Eengezinswoning
Soort bouw
vrijstaande woning
Bouwjaar
1926
Energieklasse
C
Soort dak
samengesteld dak
Slaapkamers
5
Badkamers
2
Oppervlakten en inhoud
Woonoppervlakte
241 m2
Overige inpandige ruimte
0 m2
Gebouwgebonden buitenruimte
2 m2
Externe bergruimte
23 m2
Inhoud
894 m3
Perceeloppervlakte
1640 m2
faciliteiten
Airconditioning
Dakraam
Glasvezel kabel
Natuurlijke ventilatie
Vrij uitzicht
Aan vaarwater
Baerz & Co Property Brochure

Brochure

Plattegronden

SK-Makelaardij

Raadhuisstraat 44
5056HD Berkel-Enschot

info@sk-makelaardij.nl
+31 (0)13 533 56 55

www.sk-makelaardij.nl

Informatie / bezichtigingsaanvraag

Shirley Kneepkens profile image
Shirley Kneepkens
Real Estate Agent

Een luxe woning kopen in Dinteloord

Dinteloord biedt een verfijnde gemeenschap, discretie en uitstekende bereikbaarheid. Bewoners genieten van hoogwaardige voorzieningen en rust, wat het tot een geliefde bestemming maakt voor internationale kopers die luxe en privacy waarderen.