Baerz & Co is een landelijk samenwerkingsverband van zorgvuldig geselecteerde boutique luxury makelaars. Samen vormen wij één netwerk, met één gedeeld aanbod. De woningen die u op onze website ziet, zijn afkomstig van alle aangesloten kantoren binnen Baerz & Co. Daardoor is niet ieder object rechtstreeks door ons kantoor in verkoop, maar door een gespecialiseerde collega binnen ons netwerk. Heeft u een woning gevonden die u aanspreekt en wilt u meer informatie? Dan brengen wij u graag persoonlijk in contact met de betreffende verkoopmakelaar, zodat u direct en zorgvuldig wordt begeleid.

BARCHEM
Hardermaat 12 - 7244 PZ
Nederland

Shirley Kneepkens profile image
Shirley Kneepkens
Real Estate Agent
€1.595.000 k.k.
Woonoppervlakte
256m2
Perceeloppervlakte
20110m2
Slaapkamers
3

Omschrijving

Wonen (én werken) zonder energielasten

Buitengewoon buiten – Elegant, eigentijds en energieneutraalste woonboerderij met multifunctioneel bijgebouw (288 m²) bestaande uit kantoor-, opslag- of hobbyruimte, een wagenloods en een unieke fruit- en notengaard met fenomenale uitzichten

Schitterende, weidse uitzichten op het Achterhoekse coulisselandschap rondom, met de Lochemse Berg als décor en het zeldzaam mooie natuurgebied Hagenbeek van 42 hectare direct aangrenzend; dit is één van de mooiste plekken van de Achterhoek. Hier vindt u rust en ruimte, en ervaart u de seizoenen en het land. En, dan hebben we het nog niet eens gehad over het huis… Een schitterende, geheel gemoderniseerde woonboerderij met 256 m² aan woonoppervlak), ruimte voor u en uw dierbaren, maar ook voor werk aan huis en voor uw hobby’s.

Een woonboerderij met 0 op de meter, of minder
Deze magnifieke woonboerderij kreeg in 2016 haar huidige gestalte; toen werd de boerderij, die in 1924 gebouwd werd, van onder tot boven gerenoveerd. Hierbij lag de nadruk op verduurzaming; de buitenzijde werd volledig geïsoleerd met blokken styrofoam, rondom kreeg het huis nieuw HR+++-glas, er werd een water-water-warmtepomp aangelegd (die op 75 m diepte de warmte uitwisselt en ophaalt), de vloer binnen werd voorzien van een robuuste gietvloer – ideaal in combinatie met de vloerverwarming - en op de daken werden in totaal 110 (nee, dit is géén typfout) zonnepanelen gelegd. Onder de motorkap is dit huis één en al state-of-the-art technisch vernuft. Zelfs het kleurenpalet – de buitenzijde is wit gekeimd met grijs houtwerk en kraalrand – draagt bij aan het energiezuinige karakter van het huis, want waar de witte gevels het zonlicht reflecteren, absorbeert het grijs de warmte. Dit huis heeft niet alleen nul op de meter, het levert ook nog eens fiks terug! Een thuisbatterij is hier dus een prima aanvulling.

Qua afwerking werd er gekozen voor topkwaliteit met zoveel mogelijk natuurlijke en ambachtelijke materialen; hout, metaal, keramische tegels, beton ciré… Nergens werd op beknibbeld. Het resulteerde in een heerlijk familiehuis, met alle ruimte en wooncomfort. Toch voelt het huis als een gezellig thuis, warm en met overal gezellige hoekjes om te zitten en te genieten van de omgeving. In de living is er zelfs ruimte voor een hangmat!

Het huis
Het interieur combineert vrolijk eigentijds, met strakke wanden, een uitgekiend kleurenpalet en Dutch Design, met een knipoog naar ‘vrogger’, in de vorm van charmante details, zoals een jaren ’50 bureautje, klassieke Lloyd Loom-stoelen of een Willem III-Biedermeier kast. En het gaat moeiteloos samen, als een heel gelukkig huwelijk.

De ruime hal met Portugese tegels biedt een royaal welkom. In de hal de toegang tot de technische ruimte, de trap naar de verdiepingen en de leefruimtes op de begane grond. De voormalige deel is nu een heerlijke woonkamer en de oude deeldeuren zijn vervangen door grote raampartijen. De Bullerjan (FreeFlow, A++) houtkachel zorgt voor een gezellige warmte.

De keuken is maatwerk van Scheffer Keukens Zelhem en is ronduit indrukwekkend; met een dik, composiet werkblad, robuuste massief eiken fronten en alle moderne inbouwapparatuur – van inductieplaat tot Quooker - is het een heerlijke plek om je als chef-kok uit te leven. In de oude schouw staat nog een stoere Nordic Fire-houtkachel, die de keuken voorziet van extra sfeer en warmte.

Naast de keuken bevindt zich een riante slaap-/ werkkamer, die naar wens eenvoudig gesplitst kan worden, of levensloopbestendig wonen mogelijk maakt.

De WC is voorzien van een urinoir en douchetoilet (Mera Geberit).

De voormalige melkkamer is nu de machinekamer (technische ruimte) met alle moderne snufjes, waaronder de warmteterugwin-unit, waterontharder, wasmachineaansluiting, etc.

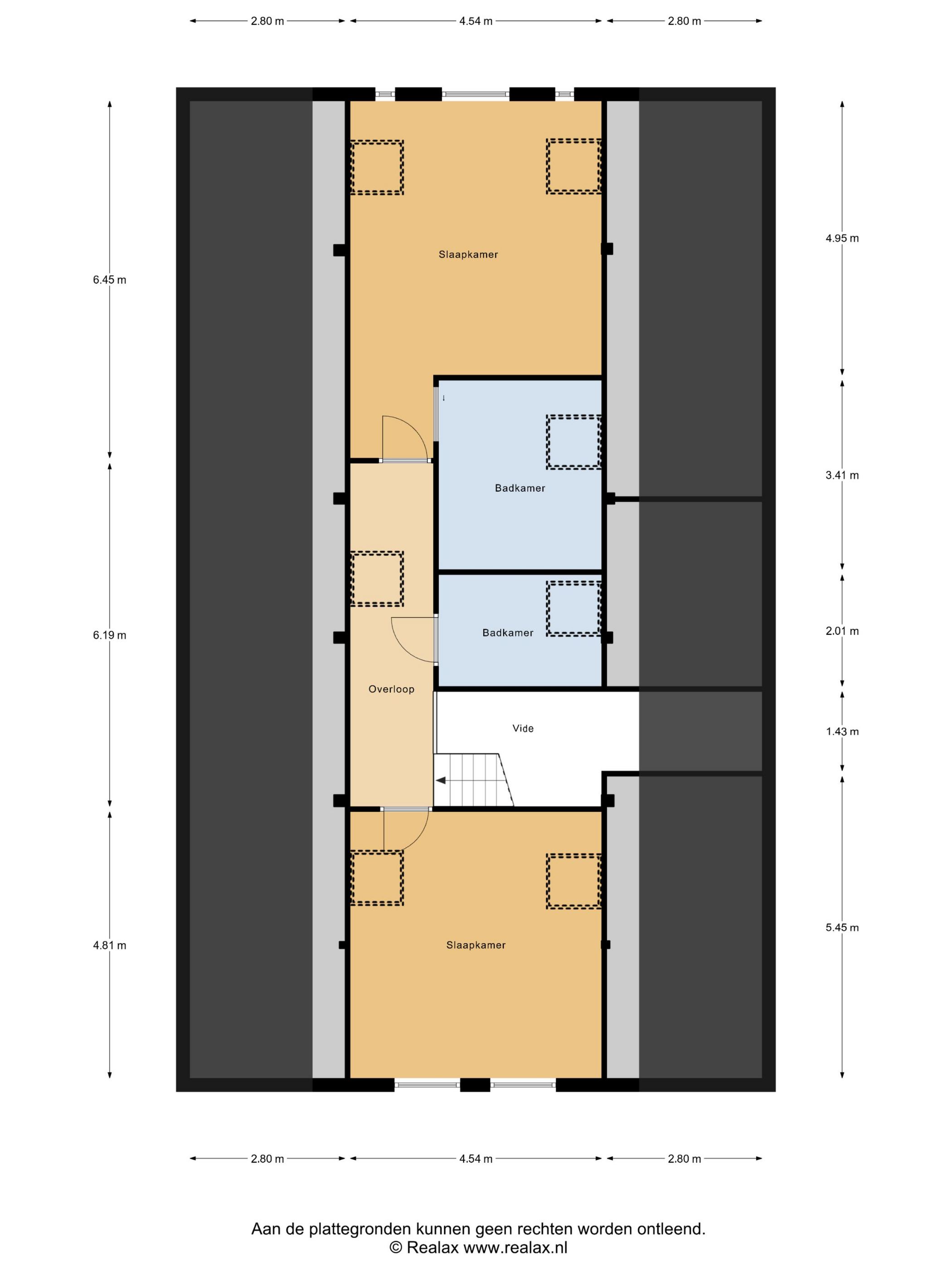
Boven een riante overloop met véél bergruimte en twee heerlijke slaapkamers, eveneens met veel bergruimte en elk een eigen badkamer. De wanden met beton ciré geven de ruimtes een chique en eigentijdse uitstraling. De badkamers zijn beide voorzien van een riante inloopdouche, wc’s met no-touch spoelsysteem (Wisa) en wastafel (Grohe Sphinx).

Het multifunctionele bijgebouw
Misschien heeft u wel een eigen bedrijf, misschien met personeel, en is het uw wens om vanuit huis te werken. Dat kan! Er is een meer dan riant bijgebouw in een U-vorm gerealiseerd bestaande uit een kantoor- met presentatieruimte (ca. 84 m²), WC, pantry met close-in boiler, een werkplaats (90 m²) waar u zo aan de slag kunt. Het geheel is net als het hoofdhuis voorzien van glasvezel met Cat6-ethernet leidingen.

Aansluitend bevindt zich een wagenloods/carport (60 m2). Daarnaast wordt de U-vorm gevuld met een dubbele afsluitbare garage (46 m²) en aansluitende tweede grote opslag-/stallingsruimte (ca. 62 m²). Op het bestrate buitenterrein is er parkeerruimte voorzien ten behoeve van minstens zes auto’s met een oplaadpaal 22kW (nu openbaar beschikbaar).

Buitenruimte – een droomtuin op basis van bio-/ ecologische inrichting
De tuin is een waar sprookje; dik twee hectare groot en vol verrassingen. Op koele avonden en ochtenden slingeren de witte wieven, die in de Achterhoekse folklore een glansrol vertolken, zich tussen de bomen en heesters van het voedselbos door. Reeën, hazen, eekhoorns, egels en allerhande vogels – van specht tot uil – voelen zich hier thuis. De reeën komen graag even een slokje halen bij de waterpartij, of genieten van de rust, terwijl ze staan te grazen. De tuin is op basis van een bio/ecologisch inrichting, klimaatbestendigheid en met heel veel diversiteit. Forse vijver ca 300 m² en 2m diep, met eromheen een bijen/vlinder-paradijs.

Vruchten- en notengaard
In de bijzondere boomgaard is een grote variëteit aan vruchten en noten te vinden. De jonge vruchten-, noten- en truffeIgaard van ca. 1,2 hectare op basis van rijenteelt, heeft een rijke variëteit aan bomen en gewassen staan: o.a. kiwi, kaki en omstreeks 55 notenrassen (waaronder walnoot, pecan, hazelnoot, kastanje, amandel, pistache, pijnboompit), die deels geënt werden met zes truffelrassen (zomer-, herfst-, zwarte, witte, bourgondische & brumale truffel). En, alles groeit en bloeit dat het een lieve lust is!

Daarnaast is er ook ruimte voor wat kleinvee en/ of kippen rondom de oude boomgaard, met een kippenhok in de vorm van een hooimijt en een grote ren. Naast de forse vijver is er ook een riante moestuin, met alle ruimte voor het kweken van uw eigen groenten en (snij-)bloemen.

Barchem, tussen Vorden, Lochem en Ruurlo
Wonen in Barchem is simpelweg genieten. Dit gezellige dorpje gelegen midden in de Achterhoek, ligt tussen verschillende natuurgebieden, wat maakt dat het bijzonder geliefd is bij toeristen. Te voet - al dan niet met hond -, te fiets of te paard - de natuur is hier toch echt de grootste trekpleister; Barchem profileert zich dan ook meer en meer als Wandeldorp, met de Wandelvierdaagse als absoluut hoogtepunt.

Het is een toegankelijk dorp met een rijk verenigingsleven, en jaarlijks trekken de Barchemse Feesten een gevarieerd publiek van ver en dichtbij. Er is een uitstekende basisschool, een bakker, een winkel waar alles te krijgen is en een sportschool. In de kerk worden zowel diensten als culturele evenementen georganiseerd; voor elk wat wils. Wilt u het gemak en voorzieningen van de stad? Dan liggen plaatsen als Lochem, Vorden en Ruurlo op tien minuten rijden, en de A1 op een kwartier. Alles bij de hand!

Kortom
Bent u op zoek naar de pauzeknop in het leven? Dit Achterhoekse paradijs is een heerlijke plek om tot rust te komen en een nieuw ritme te vinden. We laten het u met plezier zien!

Algemeen:
Bouwjaar: Boerderij oorspronkelijk uit 1924, in 2016 geheel gerenoveerd, gemoderniseerd en verduurzaamd. Bijgebouwen uit 2017
Onderhoud: Uitstekend
Isolatie: Optimaal geïsoleerd, dakisolatie RC waarde 9, muur + vloerisolatie RC-waarde 6,5, Tripleglas, dakramen met Solas zonnescreens
Verwarming: Vaillant FlexoTherm Exclusive 117/4 (hoofdverwarming)
Nordic Fire Cottage CV houtkachel 9,5kW (7,3 kW op CV en 2,2 kW ruimte) (gekoppeld met vloerverwarming woonhuis & kantoor)
In het kantoorgedeelte is een extra warmtepomp (Innova 10 Hp monobloc) voor snelle opwarming/ koeling
Warm water: Vaillant aquaFlow Exclusiv 500 ltr. vooraadbuffer en Quooker
Ligging: In het prachtige coulisselandschap in de driehoek Lochem, Vorden en Ruurlo
Bestemming: Wonen waarbij een bedrijf aan huis mogelijk is
Bijgebouw: Multifunctioneel bijgebouw bestaande uit een kantoor/ontvangstruimte, werkruimte alsmede een stallingsruimte en sport-/ opslagruimte en 12 meter brede wagenloods/carport.
Parkeren: Zes bestrate parkeervakken
Duurzaamheid: 110 zonnepanelen (31kW). Warmtepompen, hotfill-leidingen t.b.v. (af-)wasmachines
Elektra: Het perceel beschikt over een hoofdaansluiting van 3*35Amp.
In alle schuren is 3*16A krachtstroom aanwezig
Beveiliging: Twee camerabeveiligingssystemen (Acti), alsmede Ring in woning en kantoor. Separaat Inbraaksysteem van ATS Nederland kantoor/ garages
Waterbron: Op het terrein is grondwaterpomp aanwezig (10 m3/h ) voorzien van een op afstand bedienbaar sproeisysteem op het achterveld (notengaard). Op voorste gedeelte van de tuin zijn er meerdere aansluitpunten. Bij de oprit is een brandput aanwezig.

Woonoppervlakte: 256 m²
Gebouw gebonden buitenruimte: 60 m²
Externe bergruimte: 288 m²
Overig inpandige ruimte: 162 m² aan zolderruimte in het bijgebouw
Perceeloppervlakte: 20.110 m²
Energielabel woonhuis: Energieklasse A++++( EPC -0,23)
Energielabel kantoor: Energieklasse A++++ (EPC -1,58)
Aanvaarding: In overleg

Deze woning is voorzien van een tweetal energielabels met een negatieve EPC(!)

Kenmerken

Zonnepanelen
Overdracht
Vraagprijs
€ 1.595.000 k.k.
Status
verkocht onder voorbehoud
Aanvaarding
in overleg
Bouw
Soort woonhuis
Woonboerderij
Soort bouw
vrijstaande woning
Bouwjaar
1924
Energieklasse
A++++
Soort dak
zadeldak
Slaapkamers
3
Badkamers
2
Oppervlakten en inhoud
Woonoppervlakte
256 m2
Overige inpandige ruimte
162 m2
Gebouwgebonden buitenruimte
60 m2
Externe bergruimte
288 m2
Inhoud
1008 m3
Perceeloppervlakte
20110 m2
faciliteiten
Mechanische ventilatie
Dakraam
Zonnepanelen
Natuurlijke ventilatie
Aan rustige weg
Open ligging
Buiten bebouwde kom
Landelijk gelegen
Baerz & Co Property Brochure

Brochure

Video’s

Plattegronden

SK-Makelaardij

Raadhuisstraat 44
5056HD Berkel-Enschot

info@sk-makelaardij.nl
+31 (0)13 533 56 55

www.sk-makelaardij.nl

Informatie / bezichtigingsaanvraag

Shirley Kneepkens profile image
Shirley Kneepkens
Real Estate Agent

Een luxe woning kopen in Barchem

Barchem biedt een discrete, natuurlijke levensstijl met hoogwaardige woningen, uitstekende lokale services en een innemende maar internationaal georiënteerde gemeenschap. Bewoners genieten van Nederlandse traditie, privacy en directe toegang tot cultuur en voorzieningen.