Ons kantoor is lid van Baerz & Co Luxury Homes; een internationaal platform dat exclusieve woningmakelaars met elkaar verbindt. Neem contact op met ons secretariaat voor meer informatie over het landelijke aanbod, waarvan u hieronder een selectie kunt bekijken.

Grachtenpand te koop in AMSTERDAM

AMSTERDAM Keizersgracht 657 - 1017 DT Nederland


Steijn Schothorst profile image
Steijn Schothorst
Real Estate Agent
+316 53436695
info@heerenmakelaars.nl

Heeren Makelaars
Stadionweg 75
1077 SE Amsterdam
NETHERLANDS
+31 0204702255
www.heerenmakelaars.nl
info@heerenmakelaars.nl

Woonoppervlakte
175m2
Perceeloppervlakte
79m2
Slaapkamers
3

Omschrijving

Keizersgracht 657, 1017 DT Amsterdam

Midden op de charmante Keizersgracht, in het hart van Amsterdam, vindt u dit unieke grachtenpand (ca. 175 m²). Verdeeld over vier karaktervolle woonlagen, met een royale tuin van ca. 24 m², twee balkons, drie slaapkamers en zelfs een zelfstandige verdieping met een B&B-vergunning, biedt deze woning een zeldzame combinatie van historisch karakter en modern wooncomfort. Een absolute buitenkans op een toplocatie in de stad!

Ligging & Bereikbaarheid

Dit unieke grachtenpand is gesitueerd aan een van de mooiste en breedste delen van de Keizersgracht, tussen de Vijzelstraat en de Reguliersgracht. Omringd door galerieën, musea van wereldklasse, sfeervolle restaurants, koffiehotspots en de stijlvolle Utrechtsestraat bevindt alles wat Amsterdam zo geliefd maakt zich op loopafstand.

Ook qua bereikbaarheid zit u hier perfect: tram- en bushaltes en de Noord/Zuidlijn zijn op korte loopafstand. Parkeren kan in nabijgelegen garages of – met vergunning – gewoon op de gracht.

Indeling

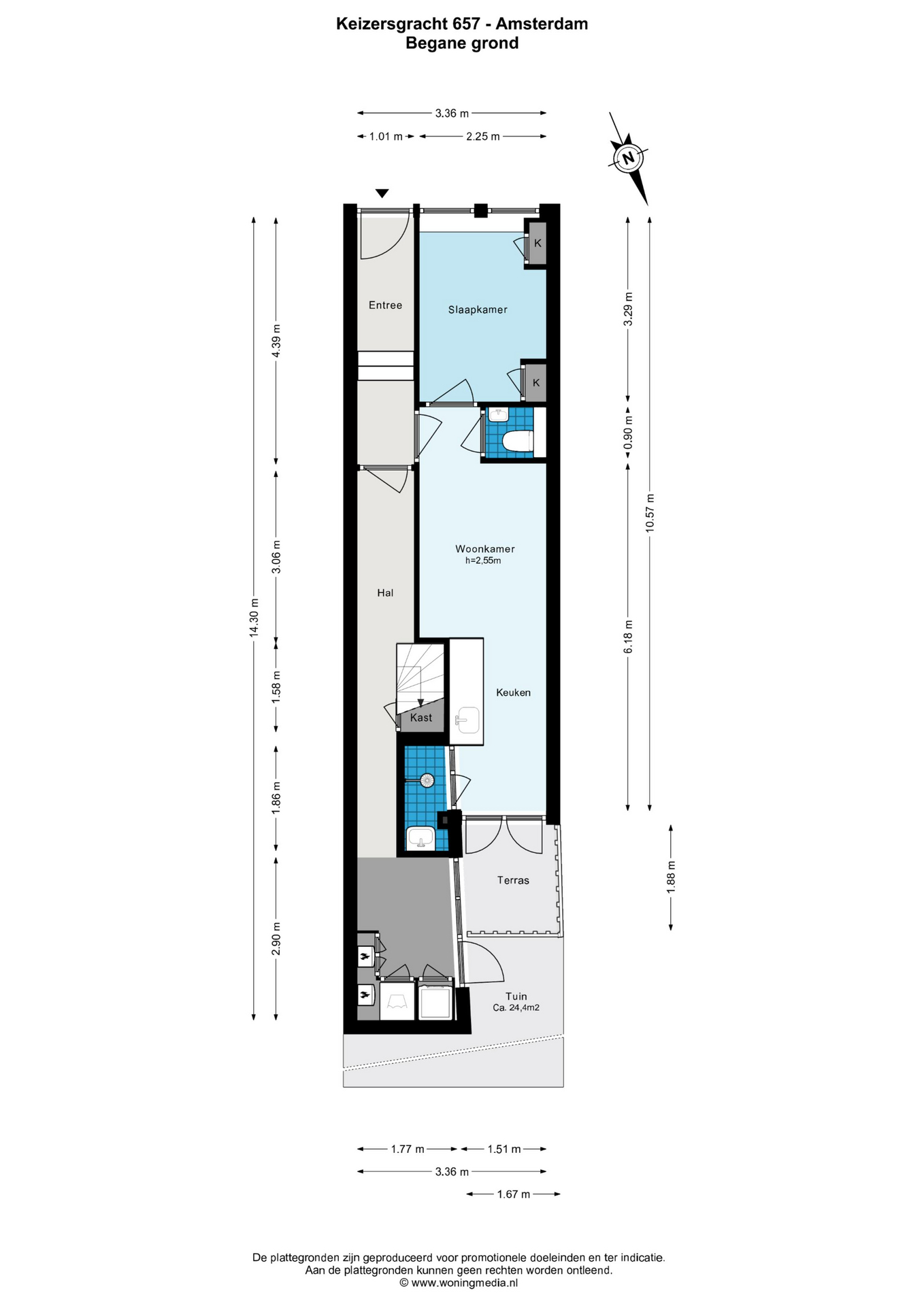
Begane grond

De entree leidt naar een hal met toegang tot een ruime was- en technische ruimte aan de achterzijde, voorzien van aansluitingen voor wasmachine en droger. Via een openslaande deur bereikt u de heerlijke achtertuin van ca. 24 m².

Een aparte ingang geeft toegang tot het zelfstandig te verhuren B&B-gedeelte. Dit bestaat uit een slaapkamer met ingebouwde kasten aan de voorzijde, een centrale living met open keuken, een moderne badkamer uitgerust met een douche en een wastafel en een separaat toilet. Via openslaande deuren stapt u vanaf hier zó het terras op.

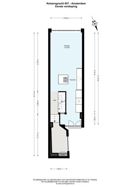
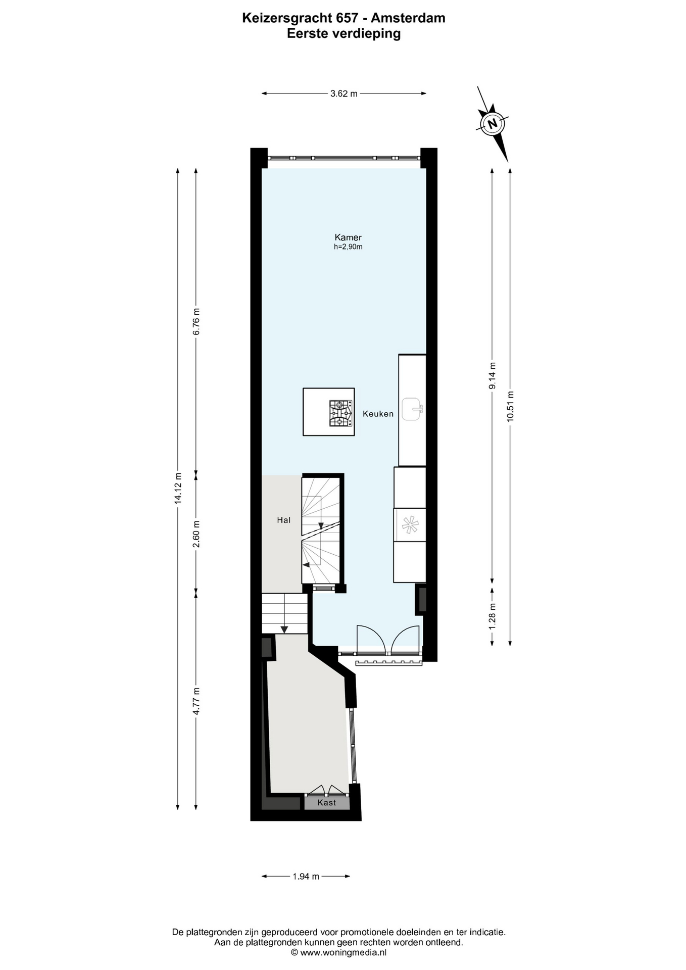
Eerste verdieping

Op deze woonlaag vindt u de stijlvolle eetkamer aan de voorzijde, compleet met ingebouwde bar (inclusief spoelbak en twee koelkasten) en grote ramen met weids uitzicht over de gracht. In het midden ligt de luxe woonkeuken met kookeiland, geïntegreerd afzuigsysteem, een aangrenzende eettafel en hoogwaardige Miele-apparatuur, waaronder een stoomoven, combi-oven, Quooker, vaatwasser en bordenwarmer. Aan de achterzijde bevindt zich een fijne thuiswerkplek met op maat gemaakte kasten en bureau.

Tweede verdieping

Middels de hal bereikt u de ruime doorzon woonkamer gelegen op de tweede verdieping. Gave erker biedt prachtig uitzicht over de gracht en voorzien de ruimte van bijzonder veel lichtinval. Aan de achterzijde van deze verdieping komt u middels openslaande deuren op het Frans balkon welke uitzicht op de tuin biedt, aan deze zijde treft u tevens een separaat toilet.

Derde verdieping

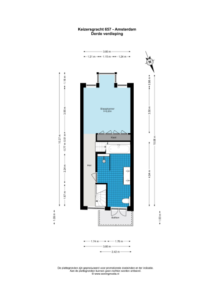
De master bedroom aan de voorzijde is uitgerust met ingebouwde kasten, geïntegreerde airconditioning en opnieuw zo een sfeervolle erker met grachtenzicht. Middels de hal bereikt u de bijzonder riante badkamer met inloopdouche inclusief sunshower en luxe inbouwdouchekop met verschillende functies, ligbad, dubbele wastafel met meubel, toilet en openslaande deuren die toegang verlenen naar het tweede balkon.

Vierde verdieping

In de nok van de woning, gelegen op de vierde verdieping, een ruimte perfect te gebruiken als tweede slaapkamer of werk-/studeerkamer. Vanuit hier heeft u toegang tot een tweede balkon, op het zuiden gelegen met prachtig uitzicht over de gracht. Deze doorzon kamer is voorzien van twee dakkapellen.
Authentieke balken voorzien de gehele woning van bijzonder veel sfeer. Tevens is het gehele pand voorzien van vloerverwarming.

Keizersgracht:
Naar Keizer Maximiliaan I, aartshertog van Oostenrijk, die in 1489 aan Amsterdam het privilége schonk de keizerskroon op het wapen te voeren.
(Bron :Stadsatlas Amsterdam)

Bijzonderheden:
- Woonoppervlakte van ca. 175m² (gemeten conform NEN 2580 meetinstructie)
- Roerende zaken ter overname
- Separate entree op de begane grond met mogelijkheid tot verhuren als B&B. Voor meer informatie over de omzet kunt u zich richten tot Heeren Makelaars
- Drie slaapkamers
- Ruime achtertuin (ca. 24m²) en twee balkons
- Airconditioning aanwezig in elk vertrek
- Geheel voorzien van vloerverwarming
- Gehele woning voorzien van domotica waarmee het alarmsysteem, verwarming, verlichting, televisies en elektrische deuren (met vingerprint) bedient kunnen worden
- Tweede parkeervergunning mogelijk op dit adres
- Camerasysteem aanwezig in de hal, bij de voorgevel en in de achtertuin
- In 2017 is het pand volledig gerenoveerd onder toezicht van Monumentenzorg. Na oplevering is het pand van de Monumentenlijst afgehaald
- Oplevering in overleg

Deze informatie is door ons met de nodige zorgvuldigheid samengesteld. Onzerzijds wordt echter geen enkele aansprakelijkheid aanvaard voor enige onvolledigheid, onjuistheid of anderszins, dan wel de gevolgen daarvan. Alle opgegeven maten en oppervlakten zijn indicatief. Koper heeft zijn eigen onderzoeksplicht naar alle zaken die voor hem of haar van belang zijn. Met betrekking tot deze woning is de makelaar adviseur van verkoper. Wij adviseren u een deskundige (NVM-)makelaar in te schakelen die u begeleidt bij het aankoopproces. Indien u specifieke wensen heeft omtrent de woning, adviseren wij u deze tijdig kenbaar te maken aan uw aankopend makelaar en hiernaar zelfstandig onderzoek te (laten) doen. Indien u geen deskundige vertegenwoordiger inschakelt, acht u zich volgens de wet deskundige genoeg om alle zaken die van belang zijn te kunnen overzien.

Kenmerken

Overdracht
Vraagprijs
€ 2.225.000 k.k.
Status
onder bod
Aanvaarding
in overleg
Bouw
Soort woonhuis
Grachtenpand
Soort bouw
tussenwoning
Bouwjaar
1903
Energieklasse
A
Slaapkamers
3
Badkamers
2
Oppervlakten en inhoud
Woonoppervlakte
175 m2
Overige inpandige ruimte
0 m2
Gebouwgebonden buitenruimte
7 m2
Inhoud
584 m3
Perceeloppervlakte
79 m2
faciliteiten
Mechanische ventilatie
Alarminstallatie
Tv kabel
Airconditioning
Frans balkon
Dakraam
Domotica
Aan water
In centrum
Baerz & Co Property Brochure

Brochure

Informatie / bezichtigingsaanvraag

Video's

Foto's

Plattegronden