Baerz & Co is een landelijk samenwerkingsverband van zorgvuldig geselecteerde boutique luxury makelaars. Samen vormen wij één netwerk, met één gedeeld aanbod. De woningen die u op onze website ziet, zijn afkomstig van alle aangesloten kantoren binnen Baerz & Co. Daardoor is niet ieder object rechtstreeks door ons kantoor in verkoop, maar door een gespecialiseerde collega binnen ons netwerk. Heeft u een woning gevonden die u aanspreekt en wilt u meer informatie? Dan brengen wij u graag persoonlijk in contact met de betreffende verkoopmakelaar, zodat u direct en zorgvuldig wordt begeleid.

AMSTERDAM
Droogbak 7 H - 1013 GE
Nederland

Shirley Kneepkens profile image
Shirley Kneepkens
Real Estate Agent
€1.675.000 k.k.
Woonoppervlakte
172m2
Perceeloppervlakte
N/A
Slaapkamers
4

Omschrijving

Droogbak 7 H, 1013 GE Amsterdam

Volledig gerenoveerd en luxe afgewerkt benedenhuis op een prachtige locatie aan de Droogbak. De woning is verdeeld over maar liefst 4 woonlagen en gelegen op eigen grond. Met een woonoppervlak van ca. 172 m² en een royale indeling is dit een ideale woning voor wie ruimte, comfort en stijl wil combineren met het bruisende stadsleven.

Ligging en bereikbaarheid:

Wonen aan de Droogbak betekent wonen op een unieke locatie in het centrum van Amsterdam, op de grens van de karakteristieke grachtengordel en de levendige Haarlemmerbuurt. In de directe omgeving vindt u tal van hippe horecagelegenheden, van ambachtelijke koffiebars tot hoogwaardige restaurants en gezellige cafés. Populaire adressen zoals Vinnies, Het Warenhuis en Boca’s liggen op loopafstand en maken dit een ideale plek voor wie houdt van het stadse leven met een eigentijdse flair. Voor rust en ontspanning wandelt u in enkele minuten naar het groene Westerpark, of langs de schilderachtige kades van de Brouwersgracht. Ook winkels voor de dagelijkse boodschappen en speciaalzaken bevinden zich in de nabije omgeving.

De bereikbaarheid is uitstekend. Station Amsterdam Centraal ligt op steenworp afstand, waardoor u snel toegang heeft tot trein-, metro-, tram- en busverbindingen. Met de auto bent u via de S100 of de IJtunnel binnen enkele minuten op de Ring A10. Parkeren is mogelijk via het gemeentelijke vergunningensysteem of in een van de nabijgelegen parkeergarages, wat gezien de centrale ligging een groot voordeel is.

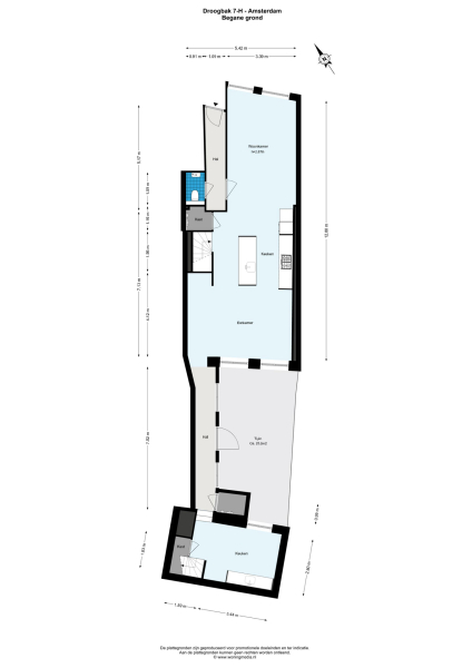
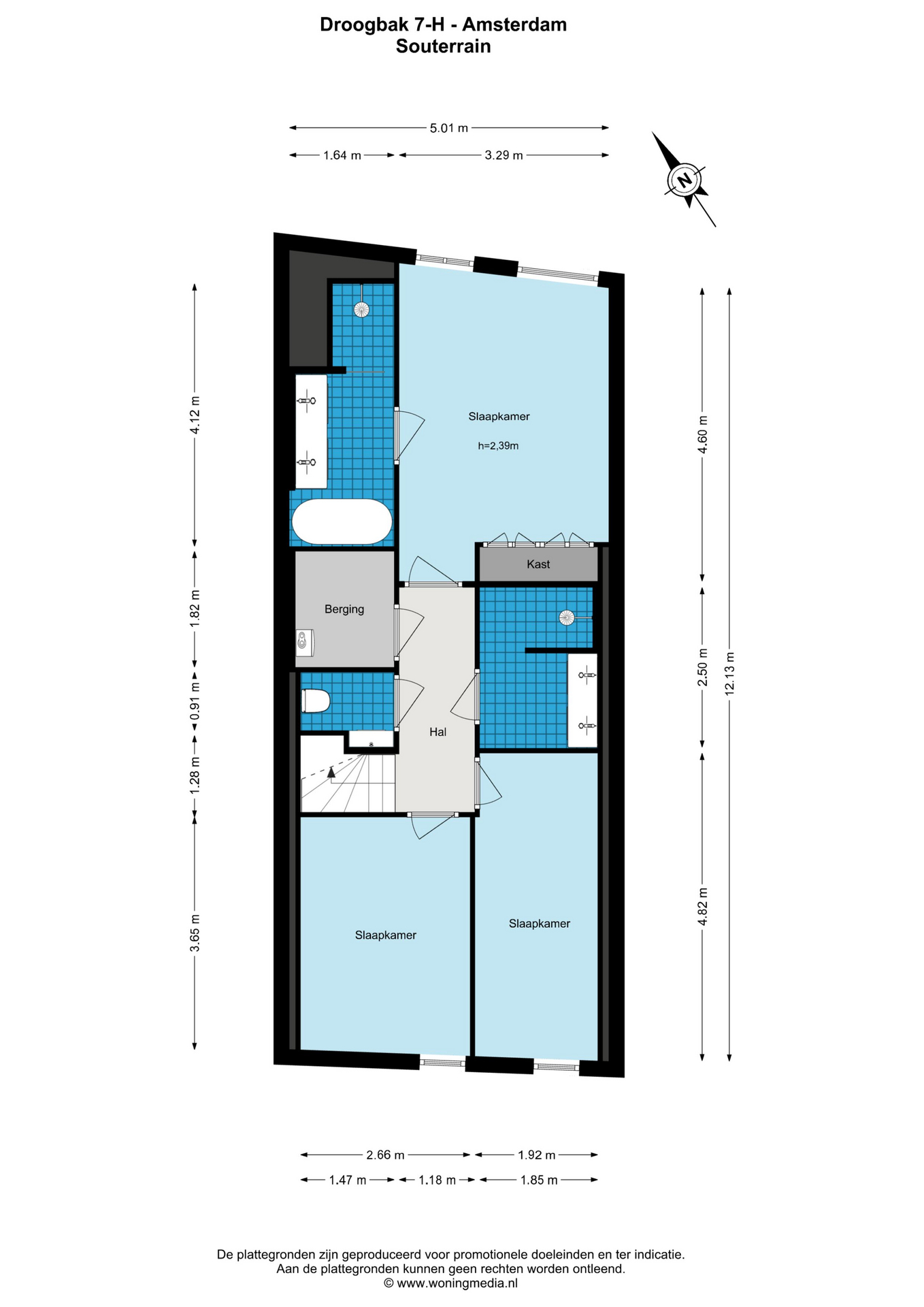
Indeling:

De woning is verdeeld over maar liefst vier woonlagen – souterrain, begane grond en twee verdiepingen in het achterhuis – en biedt daardoor een zee aan ruimte en mogelijkheden

De entree bevindt zich op de begane grond. Hier betreedt u een lichte en ruime leefruimte, waar een royale zithoek en eetgedeelte moeiteloos samenkomen. De moderne open keuken verbindt de twee ruimtes en is voorzien van een kookeiland en hoogwaardige inbouwapparatuur – een eyecatcher voor kookliefhebbers. Vanuit de eetkamer openen grote openslaande deuren naar de charmante (binnen)tuin, een beschutte, privé plek in het hart van de woning, weg van de drukte van de stad. Hier geniet u van een heerlijk binnen-buiten gevoel. Aan de achterzijde bevindt zich een extra kamer, eveneens bereikbaar via de tuin of vanuit de hal naast de eetkamer. Deze ruimte beschikt over een tweede keuken en biedt daardoor tal van gebruiksmogelijkheden, zoals een werkplek, logeer- of hobbyruimte. Tevens zijn er veel inbouwkasten verwerkt op deze verdieping wat zorgt voor genoeg opbergruimte.

In het souterrain treft u drie slaapkamers en twee moderne badkamers. De riante master bedroom beschikt over grote ramen die zorgen voor veel lichtinval en een open uitstraling, evenals een praktische inbouwkast. Beide badkamers zijn luxe uitgevoerd met een inloopdouche en dubbel wastafelmeubel; één van de badkamers is bovendien uitgerust met een ligbad. Op deze verdieping bevinden zich tevens een separaat toilet en een aparte wasruimte.

Het achterhuis biedt nog twee extra woonlagen: op de eerste verdieping vindt u een ruime badkamer met ligbad, dubbele wastafel en inloopdouche, en op de tweede verdieping nog een extra slaapkamer.

Het appartement is volledig gerenoveerd en uitgevoerd in een moderne, luxe stijl met hoogwaardig afwerkingsniveau, vloerverwarming én gelegen op eigen grond.

De getoonde foto’s zijn artist impressions (renders) en bedoeld om een goede indruk te geven van de sfeer en mogelijkheden van de woning. Het appartement wordt uiteraard volledig en hoogwaardig afgewerkt opgeleverd, inclusief keuken, badkamers en alle vaste voorzieningen.

Bijzonderheden:
- Woonoppervlakte van ca.172 m² (gemeten conform NEN-2580 meetcriteria)
- Verdeeld over vier woonlagen
- Hoogwaardig afwerkingsniveau en vloerverwarming
- Meerdere slaapkamers en badkamers, ideaal voor een groot gezin of gasten
- Sfeervolle binnentuin met veel privacy
- Gelegen op eigen grond
- VvE in oprichting
- Verkoop onder voorbehoud van splitsing
- Niet-zelfbewoningsclausule van toepassing
- Projectnotaris: Hartman LMH
- Oplevering in overleg

Deze informatie is door ons met de nodige zorgvuldigheid samengesteld. Onzerzijds wordt echter geen enkele aansprakelijkheid aanvaard voor enige onvolledigheid, onjuistheid of anderszins, dan wel de gevolgen daarvan. Alle opgegeven maten en oppervlakten zijn indicatief. Koper heeft zijn eigen onderzoeksplicht naar alle zaken die voor hem of haar van belang zijn. Met betrekking tot deze woning is de makelaar adviseur van verkoper. Wij adviseren u een deskundige (NVM-)makelaar in te schakelen die u begeleidt bij het aankoopproces. Indien u specifieke wensen heeft omtrent de woning, adviseren wij u deze tijdig kenbaar te maken aan uw aankopend makelaar en hiernaar zelfstandig onderzoek te (laten) doen. Indien u geen deskundige vertegenwoordiger in-schakelt, acht u zich volgens de wet deskundige genoeg om alle zaken die van belang zijn te kunnen overzien. Van toepassing zijn de NVM voorwaarden.

Kenmerken

Overdracht
Vraagprijs
€ 1.675.000 k.k.
Status
beschikbaar
Aanvaarding
in overleg
Bouw
Soort woonhuis
Benedenwoning
Soort bouw
appartement
Bouwjaar
1770
Energieklasse
A
Soort dak
samengesteld dak
Slaapkamers
4
Badkamers
3
Oppervlakten en inhoud
Woonoppervlakte
172 m2
Overige inpandige ruimte
0 m2
Inhoud
656 m3
faciliteiten
Mechanische ventilatie
Aan rustige weg
In centrum
Baerz & Co Property Brochure

Brochure

Video’s

SK-Makelaardij

Raadhuisstraat 44
5056HD Berkel-Enschot

info@sk-makelaardij.nl
+31 (0)13 533 56 55

www.sk-makelaardij.nl

Informatie / bezichtigingsaanvraag

Shirley Kneepkens profile image
Shirley Kneepkens
Real Estate Agent

Een luxe woning kopen in Amsterdam

Amsterdam biedt een kosmopolitische levensstijl, gekenmerkt door erfgoed, verbondenheid en discrete luxe. Bewoners profiteren van een sterke internationale gemeenschap, hoogwaardige dienstverlening en een bruisende cultuur. De blijvende aantrekkingskracht van de stad schuilt in de combinatie van geschiedenis, verfijning en een vooruitstrevende geest.