Baerz & Co is een landelijk samenwerkingsverband van zorgvuldig geselecteerde boutique luxury makelaars. Samen vormen wij één netwerk, met één gedeeld aanbod. De woningen die u op onze website ziet, zijn afkomstig van alle aangesloten kantoren binnen Baerz & Co. Daardoor is niet ieder object rechtstreeks door ons kantoor in verkoop, maar door een gespecialiseerde collega binnen ons netwerk. Heeft u een woning gevonden die u aanspreekt en wilt u meer informatie? Dan brengen wij u graag persoonlijk in contact met de betreffende verkoopmakelaar, zodat u direct en zorgvuldig wordt begeleid.

AMSTERDAM
Diepenbrockstraat 18 - 1077 VZ
Nederland

€2.950.000 k.k.
Woonoppervlakte
301m2
Perceeloppervlakte
248m2
Slaapkamers
6

Omschrijving

Diepenbrockstraat 18, 1077 VZ Amsterdam

In de geliefde Apollobuurt ligt dit charmante en royale familiehuis van ca. 301 m², met een diepe achtertuin, een zonnige voortuin, zes slaapkamers, drie badkamers, een ruim souterrain en twee balkons. De woning is verdeeld over vijf woonlagen en combineert karakteristieke details met veel lichtinval en een uiterst praktische indeling. Een bijzonder comfortabel gezinshuis op een van de mooiste locaties van Amsterdam-Zuid.

Locatie & Bereikbaarheid

De Diepenbrockstraat is gelegen in een van de meest prestigieuze en gewilde delen van Amsterdam-Zuid, in de rustige en groene Apollobuurt. Deze wijk staat bekend om haar statige panden, brede lanen en karakteristieke architectuur uit de Amsterdamse School. In de directe omgeving vindt u de Beethovenstraat met diverse boetieks, speciaalzaken en restaurants, evenals het Scheldeplein met verschillende horecagelegenheden en buurtwinkels. Ook het Concertgebouw, het Museumplein en de P.C. Hooftstraat bevinden zich op korte fietsafstand. Voor gezinnen is dit een uitzonderlijk fijne locatie. Het Beatrixpark ligt letterlijk om de hoek en beschikt onder meer over een geliefd peuterzwembadje, ideaal voor jonge kinderen. Daarnaast bevinden zich in de omgeving meerdere uitstekende Nederlandse en internationale scholen en diverse sportfaciliteiten.

De bereikbaarheid is uitstekend: de woning ligt gunstig ten opzichte van de uitvalswegen A10 en A4, Station Amsterdam Zuid en Schiphol. Parkeren geschiedt via het vergunningenstelsel; doorgaans is er voldoende parkeergelegenheid en kunnen bewoners twee parkeervergunningen aanvragen.

Indeling

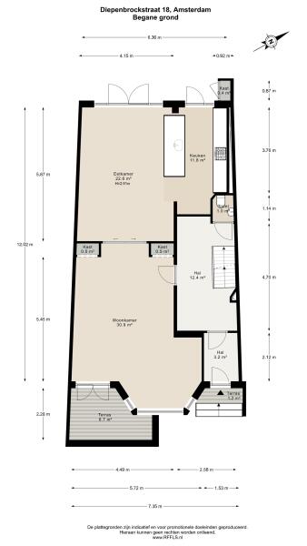
Begane grond

Entree met tochtportaal, gevolgd door een ruime hal met garderobe, trapopgang en een separaat toilet met fontein. Aan de voorzijde bevindt zich de sfeervolle woonkamer met open haard en een erker, welke zorgt voor een prachtige lichtinval. Hier is volop ruimte voor een royale zithoek en eventueel een lees- of werkhoek. Via dubbele openslaande deuren bereikt u het verhoogde terras aan de voorzijde, waar u heerlijk van de zon kunt genieten. Aan de achterzijde, achter schuifdeuren, ligt de royale eetkamer met aangrenzend de open keuken met kookeiland. De keuken is uitgerust met een vijfpits gasfornuis, afzuigkap, oven, combi-oven, koelkast, vaatwasser, Quooker en biedt bovendien enorm veel opbergruimte.

Via openslaande deuren heeft u toegang tot de diepe en zonnige achtertuin, die veel privacy biedt en beschikt over een vrijstaande berging, ideaal voor fietsen en tuingereedschap. Bovendien beschikt deze woning, als één van de weinige in de Diepenbrockstraat, over een achterom, afgesloten met een houten hek voorzien van een codeslot.

Eerste verdieping

Overloop met toegang tot twee bijzonder ruime slaapkamers. De master bedroom ligt rustig aan de achterzijde en beschikt over op maat gemaakte kastenwanden. Via dubbele openslaande deuren bereikt u het brede balkon van ca. 6 m² met veel privacy. De royale badkamer bevindt zich en-suite en is voorzien van een ligbad, inloopdouche, dubbele wastafel met meubel en een toilet. De badkamer is tevens toegankelijk vanuit de hal. Aan de voorzijde treft u de tweede ruime slaapkamer, eveneens met ingebouwde kastenwanden, momenteel ingericht als kantoorruimte met twee werkplekken.

Tweede verdieping

Overloop met toegang tot de derde slaapkamer aan de achterzijde. Daarnaast bevindt zich een kledingkamer met praktische en fraai afgewerkte inbouwkasten, die eenvoudig kan worden omgebouwd tot extra kinderkamer of werkruimte. Aan de voorzijde ligt de vierde slaapkamer, met toegang tot het zeer diepe en brede balkon van ca. 13 m². Deze woning is bovendien de enige in de straat die hier geen direct zicht heeft op andere woningen, wat voor extra privacy zorgt. Verder bevindt zich op deze verdieping een aparte wasruimte met aansluitingen voor wasmachine en droger en extra bergruimte. Vanuit deze ruimte is eveneens toegang tot het balkon. Centraal ligt de badkamer, voorzien van een drievoudige wastafel met meubel en een inloopdouche. Daarnaast is er een separaat toilet met fonteintje.

Derde verdieping

Overloop met toegang tot de vijfde slaapkamer van dit familiehuis. De bovenste verdieping heeft een indrukwekkende nokhoogte en meerdere ramen, waardoor de ruimte bijzonder licht en ruimtelijk aanvoelt. En-suite bevindt zich een badkamer met inloopdouche, wastafel met meubel en toilet. Vanaf de overloop is daarnaast een praktische berging bereikbaar. Deze verdieping leent zich uitstekend als werkkamer, logeerruimte of studio.

Souterrain

Via de trap in de hal op de begane grond bereikt u het souterrain, dat zich onder een groot deel van het huis uitstrekt. Deze ruimte vormt een ideale plek om met familie of vrienden te ontspannen. Het souterrain is netjes afgewerkt en beschikt over een ruime open ruimte en extra bergruimte. De ruimte kan desgewenst eenvoudig worden ingericht als wijnkelder, film- of gamekamer, of een combinatie daarvan met extra opslag.

Bijzonderheden:

- Gebruiksoppervlakte woning ca. 301 m² (gemeten conform NEN2580 meetrapport)
- Achtertuin van ca. 97 m² met tuinhuis en achterom
- Zonnige voortuin met terras (ca. 37 m²)
- Zes slaapkamers, waarvan één momenteel in gebruik als walk-in closet
- Drie ruime badkamers
- Riant souterrain (ca. 56 m²) met extra berging
- Voorkant woning gezandstraald en gevoegd in 2023
- Energielabel C
- Recht van erfpacht: huidig tijdvak t/m 31 maart 2059, jaarlijkse canon € 6.805,40 met een jaarlijkse indexering
- Eigenaren zijn reeds overgestapt naar eeuwigdurende erfpacht (AB2016), canon is vastgeklikt
- Oplevering in overleg

Deze informatie is door ons met de nodige zorgvuldigheid samengesteld. Onzerzijds wordt echter geen enkele aansprakelijkheid aanvaard voor enige onvolledigheid, onjuistheid of anderszins, dan wel de gevolgen daarvan. Alle opgegeven maten en oppervlakten zijn indicatief. Koper heeft zijn eigen onderzoeksplicht naar alle zaken die voor hem of haar van belang zijn. Met betrekking tot deze woning is de makelaar adviseur van verkoper. Wij adviseren u een deskundige (NVM-)makelaar in te schakelen die u begeleidt bij het aankoopproces. Indien u specifieke wensen heeft omtrent de woning, adviseren wij u deze tijdig kenbaar te maken aan uw aankopend makelaar en hiernaar zelfstandig onderzoek te (laten) doen. Indien u geen deskundige vertegenwoordiger inschakelt, acht u zich volgens de wet deskundige genoeg om alle zaken die van belang zijn te kunnen overzien. Van toepassing zijn de NVM-voorwaarden.

Kenmerken

Overdracht
Vraagprijs
€ 2.950.000 k.k.
Status
beschikbaar
Aanvaarding
in overleg
Bouw
Soort woonhuis
Eengezinswoning
Soort bouw
tussenwoning
Bouwjaar
1938
Energieklasse
C
Soort dak
zadeldak
Slaapkamers
6
Badkamers
3
Oppervlakten en inhoud
Woonoppervlakte
301 m2
Overige inpandige ruimte
0 m2
Gebouwgebonden buitenruimte
25 m2
Externe bergruimte
6 m2
Inhoud
1537 m3
Perceeloppervlakte
248 m2
faciliteiten
Dakraam
In woonwijk
Baerz & Co Property Brochure

Brochure

Video’s

SK-Makelaardij

Raadhuisstraat 44
5056HD Berkel-Enschot

info@sk-makelaardij.nl
+31 (0)13 533 56 55

www.sk-makelaardij.nl

Informatie / bezichtigingsaanvraag

Shirley Kneepkens profile image
Shirley Kneepkens
Real Estate Agent

Een luxe woning kopen in Amsterdam

Amsterdam biedt een kosmopolitische levensstijl, gekenmerkt door erfgoed, verbondenheid en discrete luxe. Bewoners profiteren van een sterke internationale gemeenschap, hoogwaardige dienstverlening en een bruisende cultuur. De blijvende aantrekkingskracht van de stad schuilt in de combinatie van geschiedenis, verfijning en een vooruitstrevende geest.