WIMBLEDONPARK 235 / HET GROOTSTE PENTHOUSE VAN AMSTELVEEN
In het statige en zeer luxe appartementencomplex "Residentie Bellegarde" op de twaalfde en dertiende verdieping gelegen fenomenaal PENTHOUSE met een woonoppervlakte van maar liefst 334 m² met rondom gebruik van terrassen van circa 158 m² en vier parkeerplaatsen in de parkeerkelder.
Het fenomenale penthouse is gebouwd in 2002 onder architectuur van Edwin Niekel met het interieur van Erik Kuster. Dit weergaloze Penthouse is voorzien van de modernste installaties en systemen. De ruimtes lopen via een brede corridor vloeiend in elkaar over en dankzij slimme oplossingen, een uitgebreid Domotica-systeem en een sublieme afwerking met kwalitatief hoogwaardige terugkerende materialen, in een intieme en aangename ambiance gerealiseerd met maximaal comfort en luxe.
Het appartement is te bereiken via een lift met persoonlijke code en heeft fantastische uitzichten richting Zuid-As, Amsterdam Arena, de Amsterdamse Westerkerk, Pontsteiger en Groengebied Amstelland. De locatie is zeer gunstig ten opzichte van diverse uitvalswegen, Stadshart van Amstelveen, grote Albert Heijn, de Internationale School, diverse sportscholen, middelbare scholen en luchthaven Schiphol, maar ook het centrum van Amsterdam is nabij met zeer goede OV verbinding.
Indeling: Via de beveiligde entree betreedt u het appartementencomplex. De entree heeft twee liften en een videofoonmonitor. De parkeerplaatsen bevinden zich in de afgesloten parkeerkelder met een op afstand bedienbare toegangsdeur, twee individuele (fietsen)bergingen voorzien van elektra.
Dertiende verdieping: de beveiligde lift met persoonlijke code, geeft toegang tot het penthouse. Ruime hal met garderobe. Alle vertrekken staan in verbinding met elkaar. De keuken is op maat gemaakt en voorzien van alle denkbare inbouwapparatuur. Er zijn twee open haarden (Boley, gas). De wanden zijn afgewerkt met Venetiaans stucwerk en de vloer is geheel voorzien van marmer met vloerverwarming. De te gebruiken terrassen zijn gelegen op het oosten, zuiden en westen.
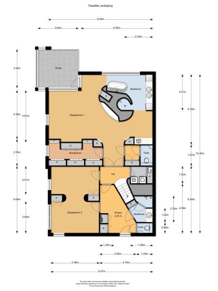
Twaalfde verdieping: via de trap en de lift is de twaalfde verdieping bereikbaar. Hier bevinden zich de masterbedroom met luxe badkamer met ligbad, aparte inloop douche en dubbele wastafel, inloopkast en pantry. Deze kamer heeft toegang tot op het zuid-oosten gelegen terras. Aparte toilet met fontein.
Tweede (slaap)kamer (voorheen 2 aparte kamers), gang, was- en stookruimte, gang met tweede badkamer en derde toilet met fontein. Deze ruimte is af te sluiten van het penthouse en ideaal voor gasten, of te gebruiken als office appartement en te separeren van de overige ruimtes van het appartement.
Parkeerplaatsen: de parkeerplaatsen zijn separaat te koop voor € 50.000 per parkeerplaats.
Bijzonderheden:
- Woonoppervlakte: 334 m2 + 11 m2 centrale hal;
- Terras totaal: 158 m2;
- Gelegen op de 12e verdieping en 13e verdieping;
- 4 Parkeerplaatsen (separaat te koop)
- 2 grote bergingen in de kelder van het gebouw
- Beveiligde lift met pincode
- Binnenstad Amsterdam (15 minuten) met al haar musea, ultra luxe winkels en Concertgebouw;
- Rondom fantastisch uitzicht van de Utrechtse Dom tot de Amsterdamse Westerkerk;
- 3 terrassen en 1 balkon met het fenomenale uitzicht!;
- Alleen onderburen, optimale privacy;
- Exterieur Edwin Niekel;
- Interieur Erik Kuster
- Domotica systeem, licht en luchtbehandeling;
- Intergas CV-ketel nieuw geïnstalleerd (2024)
- Geheel voorzien van dubbele beglazing;
- Sunscreens en diverse airco's aanwezig;
- Grote open haard Boley
- Op maat gemaakte keuken.
- Maandelijkse service bijdrage € 846,47 (€ 296,68 voor WP 235, € 424,79 voor WP 241 en € 31,25 per parkeerplaats).
Deze informatie is door ons met de nodige zorgvuldigheid samengesteld. Onzerzijds wordt echter geen enkele aansprakelijkheid aanvaard voor enige onvolledigheid, onjuistheid of anderszins, dan wel de gevolgen daarvan. Alle opgegeven maten en oppervlakten zijn indicatief. Koper heeft zijn eigen onderzoeksplicht naar alle zaken die voor hem of haar van belang zijn. Met betrekking tot deze woning is de makelaar adviseur van verkoper. Wij adviseren u een deskundige (NVM-)makelaar in te schakelen die u begeleidt bij het aankoopproces. Indien u specifieke wensen heeft omtrent de woning, adviseren wij u deze tijdig kenbaar te maken aan uw aankopend makelaar en hiernaar zelfstandig onderzoek te (laten) doen. Indien u geen deskundige vertegenwoordiger inschakelt, acht u zich volgens de wet deskundige genoeg om alle zaken die van belang zijn te kunnen overzien. Van toepassing zijn de NVM voorwaarden.