Baerz & Co is een landelijk samenwerkingsverband van zorgvuldig geselecteerde boutique luxury makelaars. Samen vormen wij één netwerk, met één gedeeld aanbod. De woningen die u op onze website ziet, zijn afkomstig van alle aangesloten kantoren binnen Baerz & Co. Daardoor is niet ieder object rechtstreeks door ons kantoor in verkoop, maar door een gespecialiseerde collega binnen ons netwerk. Heeft u een woning gevonden die u aanspreekt en wilt u meer informatie? Dan brengen wij u graag persoonlijk in contact met de betreffende verkoopmakelaar, zodat u direct en zorgvuldig wordt begeleid.

AMSTELVEEN
Burgemeester Rijnderslaan 646 - 1185 MC
Nederland

€1.775.000 k.k.
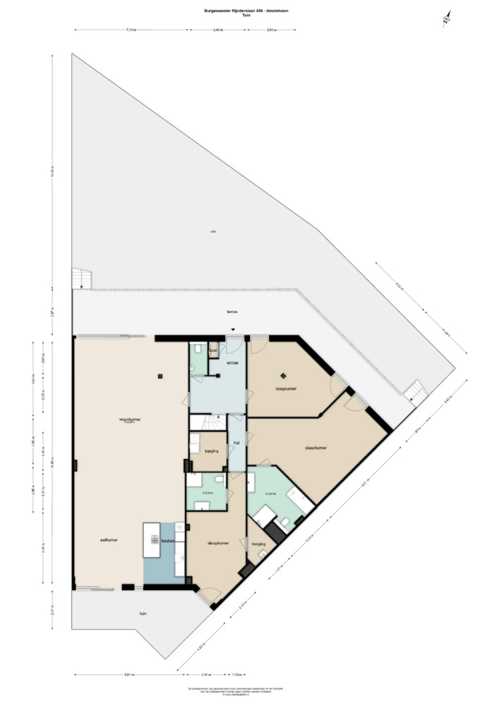
Woonoppervlakte
233m2
Perceeloppervlakte
N/A
Slaapkamers
3

Omschrijving

Instapklaar, luxe parterre appartement van 232 m² in The Mayor

In het prestigieuze wooncomplex The Mayor ligt dit uitzonderlijke parterre appartement van ruim 232 m² woonoppervlak, met een royale tuin en terras. Een woning van absolute topklasse, volledig hoogwaardig afgewerkt en compleet ingericht met luxe meubelen van Co van de Horst. Hier woont u op vijfsterrenniveau, zonder ook maar iets te hoeven doen: koffers neerzetten en wonen maar.

Indrukwekkende living met maatwerk afwerking

De enorme leefruimte van bijna 90 m² combineert een stijlvolle zithoek, eetkamer en moderne open keuken. Alles is strak gestuukt, voorzien van een prachtige PVC visgraatvloer, luxe raambekleding, maatwerkverlichting en hoogwaardig interieurdesign. De grote raampartijen zorgen voor een overvloed aan daglicht en een directe verbinding met de tuin.

Luxe woonkeuken
De keuken is uitgevoerd in een modern ontwerp met hoogwaardige inbouwapparatuur, een royaal kookeiland en volop werk- en bergruimte. Een perfecte plek voor kookliefhebbers en etentjes met vrienden of familie.

Drie ruime slaapkamers en twee badkamers

Het appartement beschikt over drie volwaardige slaapkamers, ieder met optimale maatvoering. De master bedroom heeft een luxe ensuite badkamer en een rustige ligging. De tweede badkamer is eveneens modern uitgevoerd en centraal gelegen.

Veel bergruimte en inpandige berging in parkeerkelder met ook direct toegang tot de garage.

Naast twee interne bergingen biedt dit appartement een royale inpandige berging in de parkeerkelder van 21 m², zowel via het appartement als via de parkeerkelder bereikbaar. Ideaal voor opslag, hobby of wijncollectie.

Unieke buitenruimte

Aan de voorzijde ligt een heerlijke en zeer royale tuin en aan de achterzijde een zeer ruim terras over de volledige breedte van het appartement.

Twee eigen parkeerplaatsen
In de ondergelegen parkeerkelder beschikt u over twee privéparkeerplaatsen. Comfortabel, veilig en bijzonder waardevol op deze locatie.

Wonen in The Mayor
The Mayor staat bekend om zijn luxe uitstraling, hoogwaardige bouwkwaliteit, uitstekende isolatie en stijlvolle, groene woonomgeving. Het complex is centraal gelegen nabij het Stadshart Amstelveen, diverse sport- en recreatiefaciliteiten, hoogwaardige voorzieningen, openbaar vervoer (o.a. Amstelveenlijn) en uitvalswegen richting Amsterdam en Schiphol.

Kenmerken

Woonoppervlakte: 232,7 m²
• Inpandige berging: 21,3 m²
• 3 slaapkamers, 2 badkamers
• Compleet luxueus ingericht – instapklaar
• Tuin én groot terras
• 2 eigen parkeerplaatsen in parkeerkelder
• Oplevering kan snel
• Diverse voorzieningen waaronder: M-Exclusive concierge services, The Mayor Lounge:
huiskamer voor de bewoners, The Mayor Reformer Club: gym & Pilates studio, My Pup
pakketservice en The Mayor is een beveiligd complex
• Gelegen in geliefd complex The Mayor
- Eigen woningwebsite: burgemeesterrijnderslaan646.nl
- Vraagprijs: € 1.775.000,- k.k.

Deze informatie is door ons met de nodige zorgvuldigheid samengesteld. Onzerzijds wordt echter geen enkele aansprakelijkheid aanvaard voor enige onvolledigheid, onjuistheid of anderszins, dan wel de gevolgen daarvan. Alle opgegeven maten en oppervlakten zijn indicatief. Van toepassing zijn de NVM voorwaarden.

Kenmerken

Overdracht
Vraagprijs
€ 1.775.000 k.k.
Status
beschikbaar
Aanvaarding
direct
Bouw
Soort woonhuis
Benedenwoning
Soort bouw
appartement
Bouwjaar
2023
Energieklasse
A+
Slaapkamers
3
Badkamers
2
Oppervlakten en inhoud
Woonoppervlakte
233 m2
Overige inpandige ruimte
21 m2
Gebouwgebonden buitenruimte
58 m2
Inhoud
877 m3
faciliteiten
Lift
Schuifpui
Glasvezel kabel
In woonwijk
 

Video’s

SK-Makelaardij

Raadhuisstraat 44
5056HD Berkel-Enschot

info@sk-makelaardij.nl
+31 (0)13 533 56 55

www.sk-makelaardij.nl

Informatie / bezichtigingsaanvraag

Shirley Kneepkens profile image
Shirley Kneepkens
Real Estate Agent

Een luxe woning kopen in Amstelveen

Amstelveen biedt verfijnde woningen, een internationale ambiance en uitzonderlijke connectiviteit. De combinatie van groene omgeving, internationale voorzieningen en gemeenschapszin spreekt wereldwijd gezinnen en kopers aan die privacy én een levendige stedelijke verbinding zoeken.