Welkom bij Shirley Kneepkens Makelaardij Internationaal. Ook ver buiten Nederland zijn wij zeer actief. Via ons internationale netwerk binnen Baerz & Co Luxury Homes begeleiden onze Nederlandse (!) partners u vakkundig bij de aankoop van exclusieve tweede huizen. U vindt ons in 20 landen rond de Middellandse zee, de Alpen, Mexico en Dubai. Neem voor meer informatie contact op met ons secretariaat.

BARCELONA
Spain

Chantal Cunningham profile image
Chantal Cunningham
Chief Property Advisory
€2,100,000
Living Area
201m2
Plot Size
N/A
Bedrooms
3

Description

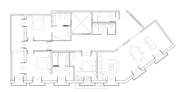
Penthouse Barcelona Quadrat d'Or is a showcase of refined living at the intersection of Calle Girona and Gran Via de les Corts Catalanes. This fully renovated 201 m² penthouse with a 20 m² terrace sits at the heart of Barcelona’s emblematic Quadrat d’Or, offering immediate access to Passeig de Gràcia and Plaça Catalunya. The residence is crafted for those who value design, provenance, and the timeless character of historic neighbourhoods.

The layout delivers three double bedrooms, two of which are en-suite, and three full bathrooms. Careful restoration maintains original hydraulic tile floors and wooden carpentry, coupled with contemporary comfort through an aerothermal system. The expansive living-dining area merges seamlessly with a bespoke, open-plan kitchen featuring a central island, high-end Miele and Liebherr appliances, Neolith counters, and lacquered cabinetry. Balconies, ample storage, and a dedicated laundry area enhance daily living.

Light pours in from the terrace and balconies, creating a dialogue between indoor elegance and Barcelona’s skyline. The building provides elevator access and professional concierge service. This luxury penthouse for sale in Barcelona is uniquely poised between cosmopolitan vibrancy and residential discretion, surrounded by restaurants, theatres, boutique shops, and architectural icons. The result is a quiet sophistication at the center of the city.

Explore Barcelona with Baerz, Your Trusted Personal Property Finder & Advisor

Engaging an expert advisor in Barcelona’s prime property segment is invaluable. Efficiently navigating local market nuances, gaining access to confidential or off-market listings, and benefiting from skilled negotiation are paramount. Bespoke advisory services offer discretion, deep-rooted connections, and risk mitigation at every stage of the acquisition or divestment journey, ensuring buyers and sellers achieve results aligned with their objectives.

Avoid common pitfalls

International buyers often waste valuable time on duplicate, outdated or misleading online listings, especially since nearly 30% of luxury homes never appear on the public market. Seller’s agents represent the seller’s interests, not the buyer’s. Even requesting information about a property can result in a seller’s agent registering you as their “client” without your consent.
With Baerz Property Finders & Advisors, you avoid all these pitfalls entirely. We work solely on your behalf, offering independent representation, clear guidance and access to all available properties, including off-market opportunities that others never get to see.

Interested in a Personal Property Advisor?

We show you all available homes in one place. Feel free to contact us to learn how we can meet your needs and protect your interests exclusively.

Features

Transfer of ownership
Asking Price
€ 2.100.000
LAS
Construction
Rooms
N/A
Bedrooms
3
Bathrooms
3
Surface Areas And Volume
Living Area
201 m2
Plot Size
0 m2
Facilities
Balcon
A/A
Telephone
Terrace
Elevator
Wardrobes cupboard
Appliances
Light
Town Gas
Laundry
Automatic Doors
Satellite
T. V.
Clearly
Baerz & Co Property Brochure

Brochure

Videos

Information / Viewing request

Chantal Cunningham profile image
Chantal Cunningham
Chief Property Advisory

Buying a Luxury Property in Barcelona

Barcelona’s luxury real estate scene welcomes international residents seeking refined living, vibrant culture, and secure investment opportunities. A blend of heritage, community, and world-class services awaits in this Mediterranean hub.