Baerz & Co is een landelijk samenwerkingsverband van zorgvuldig geselecteerde boutique luxury makelaars. Samen vormen wij één netwerk, met één gedeeld aanbod. De woningen die u op onze website ziet, zijn afkomstig van alle aangesloten kantoren binnen Baerz & Co. Daardoor is niet ieder object rechtstreeks door ons kantoor in verkoop, maar door een gespecialiseerde collega binnen ons netwerk. Heeft u een woning gevonden die u aanspreekt en wilt u meer informatie? Dan brengen wij u graag persoonlijk in contact met de betreffende verkoopmakelaar, zodat u direct en zorgvuldig wordt begeleid.

AMSTERDAM
Alexander Boersstraat 37 H - 1071 KW
Netherlands

€2,600,000
Living Area
216m2
Plot Size
N/A
Bedrooms
4

Description

Alexander Boersstraat 37-H, 1071 KW Amsterdam

Situated in a prime location in the Museum Quarter of Amsterdam Zuid, on the corner of an elegant monumental building, we proudly offer this exceptional three-level ground-floor residence. With an impressive façade width of nearly 9 metres, four bedrooms, three bathrooms, and an abundance of original period features, this is truly a one-of-a-kind property. Homes of this size, character, and quality rarely come to market in Oud-Zuid.

Location and surroundings
The property is located on the corner of Van Eeghenstraat and Alexander Boersstraat, a quiet and stately street in the heart of the prestigious Museum Quarter—one of the most desirable residential areas of Amsterdam Zuid. Within walking distance lies Museumplein, home to iconic cultural institutions such as the Concertgebouw, the Rijksmuseum, the Van Gogh Museum, and the Stedelijk Museum. The area is renowned for its unique blend of international allure, historic charm, and a pleasant sense of tranquility. In the immediate vicinity, you will find a wide range of high-quality shops, specialty stores, and restaurants. The nearby Cornelis Schuytstraat, P.C. Hooftstraat, and Willemsparkweg offer numerous culinary hotspots and stylish boutiques. Popular nearby venues for coffee, lunch, or dinner include CoffeeDistrict, The Marlin Bar, Visque, Café George, and Brasserie Joffers. In addition, the weekly organic market at Jacob Obrechtstraat is a beloved meeting place for local residents. Vondelpark is just a few minutes’ walk away and offers ample space for relaxation, sports, and outdoor recreation. The area is also highly suitable for families, with various excellent (international) schools, childcare facilities, sports amenities, and the wellness centre of the Conservatorium Hotel nearby.

Accessibility
The property is very well connected by bicycle, public transport, and car. From nearby Museumplein and Van Baerlestraat, several tram and bus lines provide direct connections to, among others, Station Zuid, Amsterdam Central Station, and Amstelveen. Bus line 397 offers a direct connection to Schiphol Airport. By car, the A10 ring road and main routes towards Utrecht, The Hague, and Schiphol can be reached within minutes via the S108 and S109. Station Zuid and the Zuidas business district are approximately a 10-minute bike ride away.

Parking
Parking is available directly in front of the property via the municipal permit system.

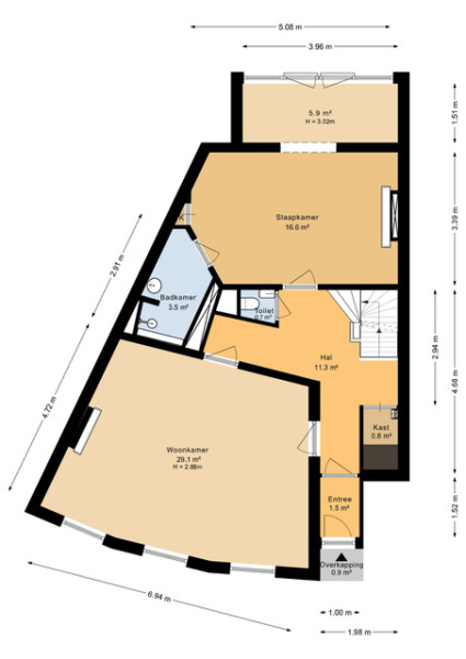
Layout

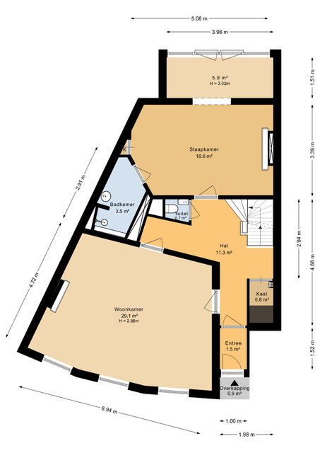
Bel-etage
Through the private entrance, you enter the vestibule, leading into a spacious and elegant hallway that provides access to the various rooms. At the front is the generous living room, spanning the full width of the property and featuring three large windows that provide abundant natural light. At the rear is the first spacious bedroom with an en-suite bathroom equipped with a walk-in shower and washbasin. From this room, there is access to the first internal balcony, offering beautiful and unobstructed views over the green inner gardens of Van Eeghenstraat. A guest toilet is accessible from the hallway.

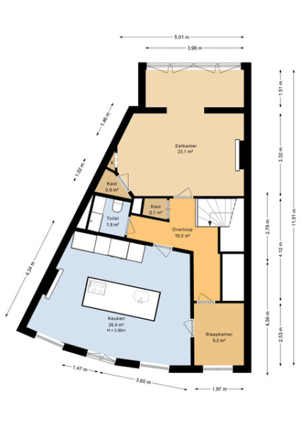
First floor
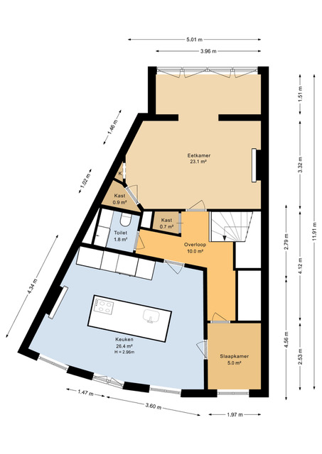
The monumental staircase leads to the landing of the first floor. At the rear is the classic dining room with access to a second internal balcony. This balcony features a folding glass façade, seamlessly connecting indoor and outdoor living. Thanks to its favourable position, you can enjoy the sun here well into the evening. At the front is the spacious kitchen-diner with cooking island—without doubt the centrepiece of the home. The kitchen is finished in beautiful dark oak and complemented by an elegant composite worktop. It is equipped with high-end Siemens StudioLine appliances, a Bora cooktop, and a Quooker tap. The island also features a welcoming bar area. With a width of nearly 7 metres and three large windows, the kitchen enjoys wonderful open views towards Jan Luijkenstraat. From both the kitchen and the landing, the fourth (bed)room can be accessed, which is ideal as a home office or study.

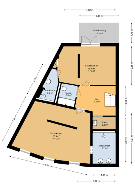
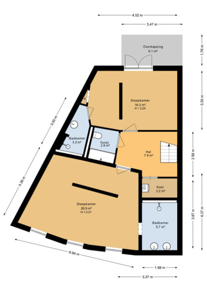
Souterrain
The lower ground floor is arranged as a comfortable sleeping level. At the front is the spacious master bedroom with built-in wardrobes and an en-suite bathroom featuring a walk-in rain shower and double washbasin. At the rear is the second large bedroom, also with its own bathroom equipped with a walk-in shower and washbasin. From this room, there is access to the attractively landscaped rear garden of approximately 18 m². A separate toilet is accessible from the hallway. In addition, the landing provides access to an internal storage room with connections for a washing machine and dryer.

Alexander Boersstraat
Alexander Boers (1842–1890), mayor of Nieuwer-Amstel from 1885 to 1890. Until 1 May 1896, the street belonged to that municipality (Source: Stadsatlas Amsterdam).

Key features:
- Three-level ground-floor residence of approx. 216 m² (NEN 2580)
- Four (bed)rooms and three bathrooms
- Rear garden of approx. 18 m² facing west, enjoying afternoon sun
- Two internal balconies, one with folding glass façade
- Recently fully and high-quality renovated
- Listed municipal monument with many original features
- Freehold property (no ground lease)
- Foundation renewed around 2005
- Small owners’ association (VvE) consisting of 2 members, self-managed
- Monthly service charges: €75
- Transfer in consultation, can be quick
This information has been compiled with due care. However, no liability is accepted for any inaccuracies, omissions, or consequences thereof. All stated measurements and surfaces are indicative. Buyers have their own duty to investigate all matters relevant to them. The selling agent represents the seller. We advise engaging a qualified (NVM) real estate agent to assist you during the purchasing process. Should you have specific requirements regarding the property, we recommend making these known in good time and conducting your own investigations. If you do not engage a professional representative, you declare yourself sufficiently knowledgeable to oversee all relevant matters. NVM conditions apply.

Features

Transfer of ownership
Asking Price
€ 2.600.000
Status
beschikbaar
Acceptance
in overleg
Construction
Kind of house
Dubbel benedenhuis
Building type
appartement
Construction period
1894
Energy rating
A
Bedrooms
4
Bathrooms
3
Surface Areas And Volume
Living Area
216 m2
Other indoor space
0 m2
Exterior space attached to the buildinge
7 m2
Volume in cubic meters
761 m3
Facilities
Mechanische ventilatie
Tv kabel
Natuurlijke ventilatie
Aan rustige weg
In woonwijk
Vrij uitzicht
Baerz & Co Property Brochure

Brochure

Videos

SK-Makelaardij

Raadhuisstraat 44
5056HD Berkel-Enschot

info@sk-makelaardij.nl
+31 (0)13 533 56 55

www.sk-makelaardij.nl

Information / Viewing request

Shirley Kneepkens profile image
Shirley Kneepkens
Real Estate Agent

Buying a Luxury Property in Amsterdam

Amsterdam offers a cosmopolitan lifestyle defined by heritage, connectivity, and discreet luxury. Residents benefit from a robust international community, curated services, and vibrant culture. The city’s enduring appeal lies in its blend of history, sophistication, and progressive spirit.